成都景泰公寓怎么样?景泰公寓价格与地址交通情况解读

房天下综合整理成都二手房网2022-10-19 11:30:29来源:房天下综合整理

[提要]景泰公寓怎么样?交通及房价如何?适合购买吗?以下带大家从地理位置到景泰公寓社区环境来深度解析。

景泰公寓怎么样?交通及房价如何?适合购买吗?以下带大家从地理位置到景泰公寓社区环境来深度解析。

景泰公寓实景图

景泰公寓基本信息

景泰公寓坐落于猛追湾街68号。归为成华玉双路。该地区格局不错。板楼。有3栋楼。房屋户数280户。容积率32.0%。1.7%绿化率。整体绿化不错。物业管理费0.7元/平米·月。停车位情况靠边停车。

景泰公寓房价走势

房天下数据显示,本月景泰公寓二手房均价为12064元/㎡,环比上月上升5.8%,同比去年下降2.66%。

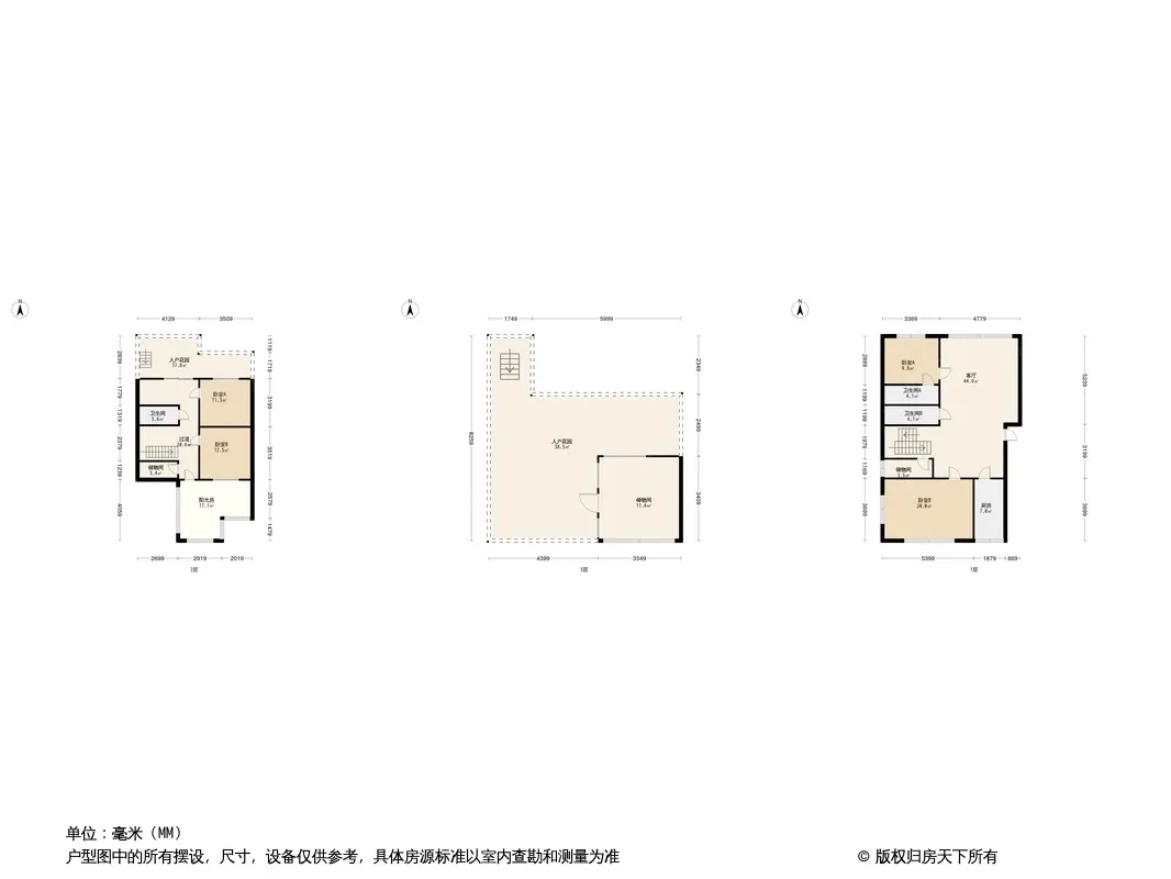
景泰公寓户型解析

景泰公寓主力户型有5室2厅2卫

景泰公寓户型图

景泰公寓地址交通

楼盘位于猛追湾街68号,附近的交通较为便利。

景泰公寓

收藏

0套在售 |0套在租 |住宅|2000年建

成华-玉双路

12064元/㎡

6路、76路。

景泰公寓周边配套

景泰公寓附近商场有百佳超市,有猛追湾小学 猛追湾中学等这些学校,有成华区妇幼保健院等这些医院,周边银行包括农业银行 工商银行 建设银行 成都商业银行,也还算方便,有成都市邮政局猛追湾邮政储蓄所等邮政,除此之外,还有电视塔,总体来看,项目周边较为完善,适合置业。

景泰公寓二手房源推荐

景泰 2室1厅 东南

2室1厅|65.91㎡|东南向|1998年建

景泰公寓玉双路

未满两年近地铁人车分流3km公园3km购物中心3km三甲医院

8913504元/㎡

景泰2室1厅东南

2室1厅|63.15㎡|东南向|1998年建

景泰公寓玉双路

满两年近地铁人车分流3km公园3km购物中心3km三甲医院

9214569元/㎡

微信扫码打开

房天下小程序

免责声明:凡注明“来源:房天下”的所有文字图片等资料,版权均属房天下所有,未经授权不得转载;已经授权使用的转载需注明出处。违反上述声明者,本网将追究其相关法律责任。文章内容仅供参考,不构成投资建议,也不代表房天下赞同其观点。文中所涉面积,如无特殊说明,均为建筑面积。