1/6
95后夫妻选房踩过的3个坑,双学区房真能装满生活理想?
双学区房真的是品质生活的终极答案吗?当购房顾问说出这句话时,我和先生对视的眼神里写满问号。上个月看金水区天宝府的经历,彻底刷新了我们这对新婚夫妻的认知。
第一眼被农科路小学+47中总校双学区打动,但真正值得关注的是今年拿合同就能入学的落地保障。"知道有多少家长为了学籍凌晨排队吗?"邻居李姐的现身说法让我后背发凉。再看到综合得房率超100%的数据时,设计师朋友却提醒:"注意露台是否计算在产权面积里!"我们实地测量发现,部分边户飘窗台确实存在后期改造限制。
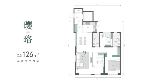
最惊喜的是户型多样性带来的选择空间,从125平三居到225平四代宅,我们在样板间看见三代同堂与丁克家庭的不同生活样本。但3.48的容积率让先生犹豫:"这种高密度社区真的适合养娃吗?"直到发现南北双阳台的餐厨联动设计,才让我们想起最初对「生活容器」的定义——能装下咖啡香气与亲子时光的,才是好房子。
第一眼被农科路小学+47中总校双学区打动,但真正值得关注的是今年拿合同就能入学的落地保障。"知道有多少家长为了学籍凌晨排队吗?"邻居李姐的现身说法让我后背发凉。再看到综合得房率超100%的数据时,设计师朋友却提醒:"注意露台是否计算在产权面积里!"我们实地测量发现,部分边户飘窗台确实存在后期改造限制。
最惊喜的是户型多样性带来的选择空间,从125平三居到225平四代宅,我们在样板间看见三代同堂与丁克家庭的不同生活样本。但3.48的容积率让先生犹豫:"这种高密度社区真的适合养娃吗?"直到发现南北双阳台的餐厨联动设计,才让我们想起最初对「生活容器」的定义——能装下咖啡香气与亲子时光的,才是好房子。
#新房探盘 #购房陷阱 #户型解析
该内容疑似使用AI技术合成,请谨慎甄别
2026-02-22

说点什么...
00





