1/6
城发玥园:金水区的「地铁房」陷阱?闺蜜一句话让我清醒
「千万别被地铁房忽悠!」闺蜜拉住我手时,我正在签城发玥园认购书。这个金水核心区的楼盘,用三个真相让我后背发凉...
【金水核心区≠居住舒适区】
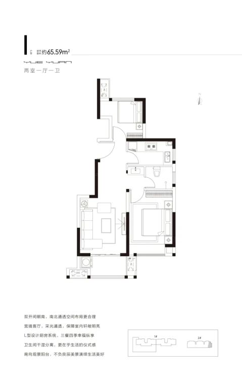
开发商总强调「双地铁交汇」,实测关虎屯站步行要10分钟。更扎心的是4.49容积率,比隔壁雅颂居高出30%!65㎡小户型塞进2.5米开间客厅,看房时差点被样板间的迷你家具骗了。
【户型设计的AB面】
136㎡四房确实惊艳:双明卫+6.8米横厅很能打。但飘窗改造要留心——实测外飘窗不能拆!想复刻网红咖啡角?先看看0.6米的台面够不够放咖啡机。
【国企盘的隐藏课题】
2026年交房看着稳妥,但周边老破小环绕。丰产路早晚高峰堵成停车场,开车族要备好绕行攻略。25%绿化率在洋房里算「硬伤」,园林效果图别太当真。
住过5套改善房才懂:核心区光环下更需要清醒。城发玥园像块夹心饼干——头顶金水区CBD光环,脚踩老城更新难题。如果你是早出晚归的金融新贵,这里的烟火气或许是加分项;但想要静谧花园的改善家庭,可能要三思。
房子不是地图上的坐标,是每天真实生活的容器。
【金水核心区≠居住舒适区】
开发商总强调「双地铁交汇」,实测关虎屯站步行要10分钟。更扎心的是4.49容积率,比隔壁雅颂居高出30%!65㎡小户型塞进2.5米开间客厅,看房时差点被样板间的迷你家具骗了。
【户型设计的AB面】
136㎡四房确实惊艳:双明卫+6.8米横厅很能打。但飘窗改造要留心——实测外飘窗不能拆!想复刻网红咖啡角?先看看0.6米的台面够不够放咖啡机。
【国企盘的隐藏课题】
2026年交房看着稳妥,但周边老破小环绕。丰产路早晚高峰堵成停车场,开车族要备好绕行攻略。25%绿化率在洋房里算「硬伤」,园林效果图别太当真。
住过5套改善房才懂:核心区光环下更需要清醒。城发玥园像块夹心饼干——头顶金水区CBD光环,脚踩老城更新难题。如果你是早出晚归的金融新贵,这里的烟火气或许是加分项;但想要静谧花园的改善家庭,可能要三思。
房子不是地图上的坐标,是每天真实生活的容器。
#购房陷阱 #户型解析 #周边配套
该内容疑似使用AI技术合成,请谨慎甄别
2025-06-04

说点什么...
00





