1/9
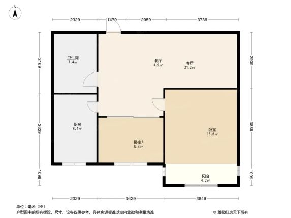
芝罘 开**世 2室1厅 73.00㎡ 49.50万
标题:急售自家南向两居室🏠采光无敌诚心出
正文:
最近准备置换房子,真心舍不得这套住了7年的小家😭但为了孩子上学只能忍痛出手!
🌟我家在开元盛世小区,2015年的次新房,物业超负责~房子是73㎡的南向两居室,每天阳光能晒到下午四点🌞冬天暖气都不用开太足!
💫重点夸夸这个楼层:16层/总27层,视野开阔又不会太高,电梯从来不排队~主次卧都带大飘窗,自己改造的储物榻榻米可以留给下任业主👏
🔍小区位置超方便:幸福开元街180号,步行到超市5分钟,门口三条公交线🚌当年自己就是看中这里烟火气足又安静~
报价49.5w诚心可谈(附购房发票),房本满五唯一税费低!欢迎随时来看房,自家保养得超好,连门锁都新换了电子锁🔑
(悄悄说:阳台的多肉不想带走,留给有缘人🌱)
正文:
最近准备置换房子,真心舍不得这套住了7年的小家😭但为了孩子上学只能忍痛出手!
🌟我家在开元盛世小区,2015年的次新房,物业超负责~房子是73㎡的南向两居室,每天阳光能晒到下午四点🌞冬天暖气都不用开太足!
💫重点夸夸这个楼层:16层/总27层,视野开阔又不会太高,电梯从来不排队~主次卧都带大飘窗,自己改造的储物榻榻米可以留给下任业主👏
🔍小区位置超方便:幸福开元街180号,步行到超市5分钟,门口三条公交线🚌当年自己就是看中这里烟火气足又安静~
报价49.5w诚心可谈(附购房发票),房本满五唯一税费低!欢迎随时来看房,自家保养得超好,连门锁都新换了电子锁🔑
(悄悄说:阳台的多肉不想带走,留给有缘人🌱)
#房主直售 #户型解析
2026-01-13

说点什么...
00





