1/11
赫山区 文苑瑞景 3室2厅 130.41㎡ 45万
标题:忍痛割爱!自住精装三居室,南北通透采光无敌🌞
正文:
这套房子是我和家人的第一套房🏠,现在因为工作调动不得不转手,真的舍不得😭!
**关于我家**:
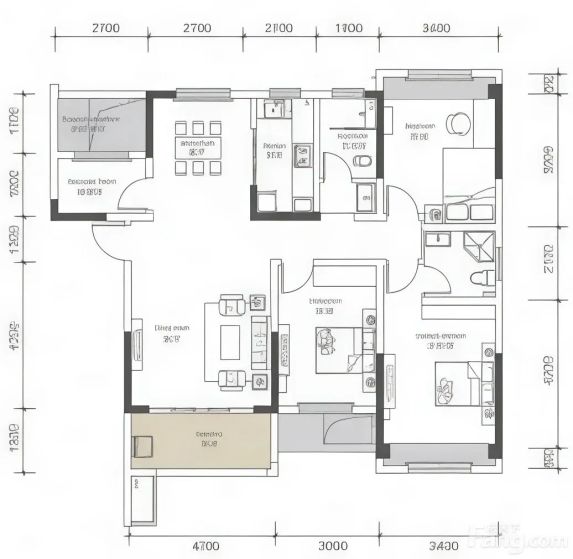
📍坐标赫山区迎宾东路519号「文苑瑞景」,2020年的次新房,电梯高层(12楼/总16层),130.41㎡三室两厅,南北朝向超级通透🌬️,每天阳光洒满客厅的感觉谁懂啊!
**亮点碎碎念**:
✅ **户型能打**:主卧带飘窗,次卧都方方正正,自己设计的餐客一体厅,朋友来了都说显大!
✅ **地段省心**:对面就是医专,旁边就是城市学院,小区读书资源就在旁边
✅ **小区加分项**:人车分流+24小时保安,楼下草坪经常看到遛狗邻居,超有生活气息🐶
价格诚心谈(挂45w),看房提前敲我就行~自家房子保养得超新,连厨房美缝都是我亲手做的!希望能找到有缘人继续爱护它💕
(配图建议:阳光下的客厅/飘窗视角/小区绿化实拍)
正文:
这套房子是我和家人的第一套房🏠,现在因为工作调动不得不转手,真的舍不得😭!
**关于我家**:
📍坐标赫山区迎宾东路519号「文苑瑞景」,2020年的次新房,电梯高层(12楼/总16层),130.41㎡三室两厅,南北朝向超级通透🌬️,每天阳光洒满客厅的感觉谁懂啊!
**亮点碎碎念**:
✅ **户型能打**:主卧带飘窗,次卧都方方正正,自己设计的餐客一体厅,朋友来了都说显大!
✅ **地段省心**:对面就是医专,旁边就是城市学院,小区读书资源就在旁边
✅ **小区加分项**:人车分流+24小时保安,楼下草坪经常看到遛狗邻居,超有生活气息🐶
价格诚心谈(挂45w),看房提前敲我就行~自家房子保养得超新,连厨房美缝都是我亲手做的!希望能找到有缘人继续爱护它💕
(配图建议:阳光下的客厅/飘窗视角/小区绿化实拍)
#房主直售 #户型解析 #周边配套
2026-04-08

说点什么...
00





