1/15
伍家岗 恒大山水城 3室2厅 121.00㎡ 90万
标题:自家恒大山水城三居急售 南北通透采光超棒🌞
正文:
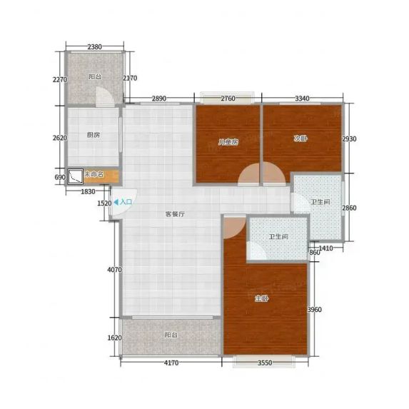
这套恒大山水城的房子真的越住越爱!要不是工作调动,我才舍不得卖呢~我家是121平的三室两厅两卫,南北通透的户型住着特别舒服!主卧和客厅都朝南,冬天阳光能晒到下午三四点☀️
小区位置超方便,就在东山大道和花溪路交汇处,步行到规划馆只要5分钟🚶♀️周边超市、菜场、银行啥都有,生活超便利!物业24小时巡逻,绿化维护得超好,住着特别安心~
我家是精装修交付的,目前保持得跟新的一样!三个卧室都不小,主卧带独立卫浴特别方便🛁厨房是L型设计,操作台面超大,做饭超顺手👩🍳
现在75万的价格真的超值!上周中介说同小区类似户型都挂到100万以上了💰恒大开发商的口碑大家都知道,小区环境超棒,有中心花园和健身区🏡
真心推荐给想买品质三居的朋友,随时可以来看房哦!自家房子,绝对靠谱~
正文:
这套恒大山水城的房子真的越住越爱!要不是工作调动,我才舍不得卖呢~我家是121平的三室两厅两卫,南北通透的户型住着特别舒服!主卧和客厅都朝南,冬天阳光能晒到下午三四点☀️
小区位置超方便,就在东山大道和花溪路交汇处,步行到规划馆只要5分钟🚶♀️周边超市、菜场、银行啥都有,生活超便利!物业24小时巡逻,绿化维护得超好,住着特别安心~
我家是精装修交付的,目前保持得跟新的一样!三个卧室都不小,主卧带独立卫浴特别方便🛁厨房是L型设计,操作台面超大,做饭超顺手👩🍳
现在75万的价格真的超值!上周中介说同小区类似户型都挂到100万以上了💰恒大开发商的口碑大家都知道,小区环境超棒,有中心花园和健身区🏡
真心推荐给想买品质三居的朋友,随时可以来看房哦!自家房子,绝对靠谱~
#房主直售
2026-01-19

说点什么...
00





