1/5
信达锦华颂:二环核心区,第四代住宅是惊喜还是陷阱?
二环内的楼盘就一定适合所有新生代家庭吗?信达锦华颂用事实说话。作为20年地产专家,我直说:这个项目地段无敌,但第四代住宅设计暗藏辩证看点。
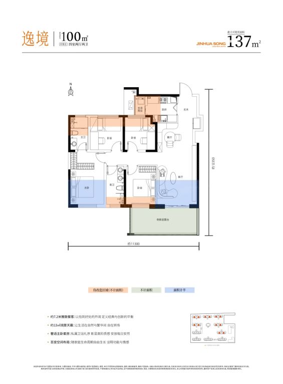
总观点是,它凭借成熟配套和高性价比吸引人,可细节决定居住品质。反常识小观点来了:一是二环内生活便利,但3.69高容积率可能带来拥挤感;二是高赠送面积实用,可37.3%绿化率在高层中是否足够舒适?三是首开价格优惠,但品质生活者需细究长期维护。
结尾辩证看,优点不吝夸赞,缺点客观提醒。适合追求便利的群体,注重隐私环境的家庭则需权衡。当你向往城市核心,当你渴望更多空间,当你权衡预算与品质,信达锦华颂让你重新思考理想家园。
总观点是,它凭借成熟配套和高性价比吸引人,可细节决定居住品质。反常识小观点来了:一是二环内生活便利,但3.69高容积率可能带来拥挤感;二是高赠送面积实用,可37.3%绿化率在高层中是否足够舒适?三是首开价格优惠,但品质生活者需细究长期维护。
结尾辩证看,优点不吝夸赞,缺点客观提醒。适合追求便利的群体,注重隐私环境的家庭则需权衡。当你向往城市核心,当你渴望更多空间,当你权衡预算与品质,信达锦华颂让你重新思考理想家园。
#新房探盘 #购房陷阱 #户型解析 #周边配套 #房价走势
该内容疑似使用AI技术合成,请谨慎甄别
2026-03-31

说点什么...
00





