1/7
光明科学城红盘真相:满京华金硕悦府真的能坐拥双学区+科学公园?
听说现在深圳家长买房都在问两个问题:有没有真学区?能不能下楼跑步?上周碰到张医生一家选房,他们看中这里紧挨深圳外国语和南科大附校,科学公园就在北面阳台可见。但老光明人私下嘀咕:"那些网红配套都还没落地啊!"
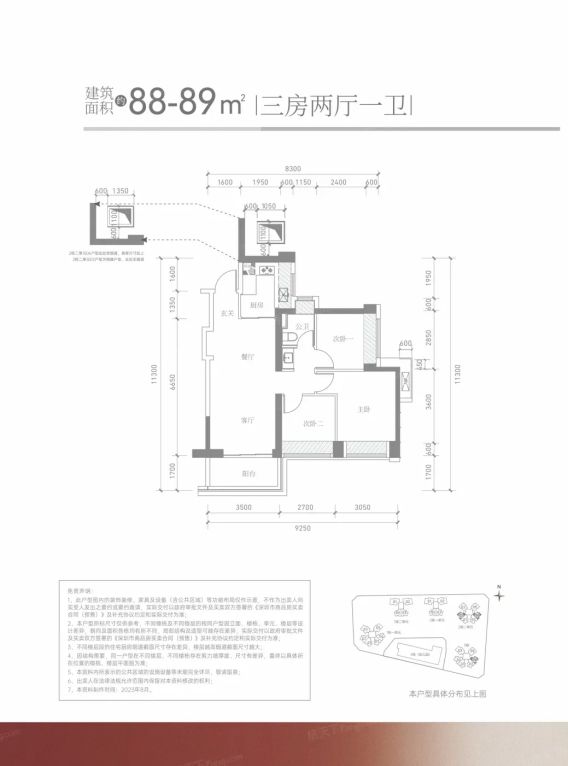
故事要从他们看样板间说起,89㎡三房硬是隔出主卧套间+双卫。张医生太太当场心动,直到邻居提醒:"6.0容积率意味着平均每层6户"。这恰是光明科学城发展的缩影——用超高使用率置换居住密度,用教育预期对冲兑现风险。
值得肯定的双学区配置确实硬核,深圳科技馆和国际美术馆落地后将成为亲子教育磁极。但需注意项目西侧楼栋可能受主干道影响,且周边大型市政建设周期可能持续到2026年。建议重点关注东南向户型,既可俯瞰学校操场又能远眺公园绿廊。
这就是光明新一代居住样本:你要公园里的晨跑半径,就得接受吊塔林立的窗外景观;你想要九年双学区护航,就要担待建设期的市井喧嚣;你用实得面积换空间自由,就得适应高密社区的共享生态。
故事要从他们看样板间说起,89㎡三房硬是隔出主卧套间+双卫。张医生太太当场心动,直到邻居提醒:"6.0容积率意味着平均每层6户"。这恰是光明科学城发展的缩影——用超高使用率置换居住密度,用教育预期对冲兑现风险。
值得肯定的双学区配置确实硬核,深圳科技馆和国际美术馆落地后将成为亲子教育磁极。但需注意项目西侧楼栋可能受主干道影响,且周边大型市政建设周期可能持续到2026年。建议重点关注东南向户型,既可俯瞰学校操场又能远眺公园绿廊。
这就是光明新一代居住样本:你要公园里的晨跑半径,就得接受吊塔林立的窗外景观;你想要九年双学区护航,就要担待建设期的市井喧嚣;你用实得面积换空间自由,就得适应高密社区的共享生态。
#新房探盘 #周边配套 #户型解析 #城市规划
该内容疑似使用AI技术合成,请谨慎甄别
2026-02-09

说点什么...
00





