1/5
檀悦府:这届年轻人买房最痛恨的坑?
听说最近深圳年轻人买房只有两种选择:要么当「龙华卷王」,要么当「深圳湾韭菜」。今天测评这个被称“龙华教育扛把子”的檀悦府,究竟值不值得上车?
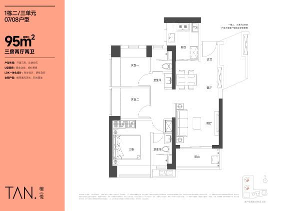
周末去踩盘看到95㎡样板间,次卧双飘窗设计确实戳中痛点——孩子玩具散落飘窗台,玩具收纳盒和绘本架刚好卡进凹位。但8.3的容积率让我瞬间清醒:高峰期电梯抢不过保障房住户,这画面太美不敢想...
周边配套倒是个意外惊喜,楼下天虹商场买杯咖啡的时间,老家同学还在开车去县城超市。不过当看到西北朝向户型全年无直射阳光时,突然理解北方朋友说的“深圳人晒被子靠想象力”。
最扎心的真相来了:带龙华教科院附属外国语学区的新华中学,和混居保障房的社区氛围,像极了学霸和学渣同桌的魔幻组合。这届年轻人买房啊,既要教育自由又要圈层纯粹,终究是鱼和熊掌。
你发现没?我们这代人对房子的要求,早就从“能住就行”变成“既要又要还要”。就像檀悦府这类新盘,用教育资源换居住密度,用区位优势换产品瑕疵,这种权衡游戏你愿意玩吗?
周末去踩盘看到95㎡样板间,次卧双飘窗设计确实戳中痛点——孩子玩具散落飘窗台,玩具收纳盒和绘本架刚好卡进凹位。但8.3的容积率让我瞬间清醒:高峰期电梯抢不过保障房住户,这画面太美不敢想...
周边配套倒是个意外惊喜,楼下天虹商场买杯咖啡的时间,老家同学还在开车去县城超市。不过当看到西北朝向户型全年无直射阳光时,突然理解北方朋友说的“深圳人晒被子靠想象力”。
最扎心的真相来了:带龙华教科院附属外国语学区的新华中学,和混居保障房的社区氛围,像极了学霸和学渣同桌的魔幻组合。这届年轻人买房啊,既要教育自由又要圈层纯粹,终究是鱼和熊掌。
你发现没?我们这代人对房子的要求,早就从“能住就行”变成“既要又要还要”。就像檀悦府这类新盘,用教育资源换居住密度,用区位优势换产品瑕疵,这种权衡游戏你愿意玩吗?
#新房探盘 #周边配套 #户型解析 #购房陷阱
该内容疑似使用AI技术合成,请谨慎甄别
2025-05-31

说点什么...
00





