1/6
72%四星高中升学率的房子长啥样?
最近后台被问爆的姑苏新盘,亲自踩盘发现三个隐藏彩蛋!
❶这才是真·书包房天花板
项目紧邻立达中学(四星高中录取率72%),步行实测554米可达新郭站,周边永威姑苏悦等次新盘已形成成熟住区。但润鸿四季外立面采用铝板斜切工艺,米白配色在片区内辨识度直接拉满。
❷生态资源居然玩起双拼模式
直线距离1.5km内集齐上方山森林公园+石湖景区+京杭大运河三重生态屏障,更绝的是270°环幕户型正对运河公园,这种把客厅变成观景台的操作确实犯规!
❸入住时间竟是最大盲盒
2025年底交付的期房现状,实测工地进度比周边某些准现房还扎实。地下车库大堂已现雏形,儿童乐园器械都进场了,这种「提前预支」小区配套的玩法倒是头回见。
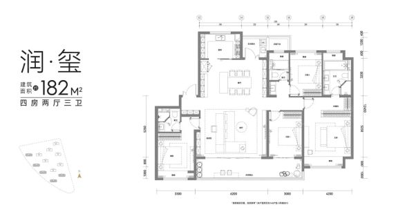
要说短板,143㎡起步的面积段注定属于改善型家庭。但双阳台+LDK厅设计确实拿捏住了苏州人的居住基因,毕竟在古城核心区能同时拥有头部教育和真山水资源的项目,五年内怕是难有替代品。
❶这才是真·书包房天花板
项目紧邻立达中学(四星高中录取率72%),步行实测554米可达新郭站,周边永威姑苏悦等次新盘已形成成熟住区。但润鸿四季外立面采用铝板斜切工艺,米白配色在片区内辨识度直接拉满。
❷生态资源居然玩起双拼模式
直线距离1.5km内集齐上方山森林公园+石湖景区+京杭大运河三重生态屏障,更绝的是270°环幕户型正对运河公园,这种把客厅变成观景台的操作确实犯规!
❸入住时间竟是最大盲盒
2025年底交付的期房现状,实测工地进度比周边某些准现房还扎实。地下车库大堂已现雏形,儿童乐园器械都进场了,这种「提前预支」小区配套的玩法倒是头回见。
要说短板,143㎡起步的面积段注定属于改善型家庭。但双阳台+LDK厅设计确实拿捏住了苏州人的居住基因,毕竟在古城核心区能同时拥有头部教育和真山水资源的项目,五年内怕是难有替代品。
#新房探盘、周边配套、户型解析
该内容疑似使用AI技术合成,请谨慎甄别
2025-12-21

说点什么...
20





