1/5
23600元/㎡的改善盘值吗?测评9.44分小区3大亮点2处硬伤
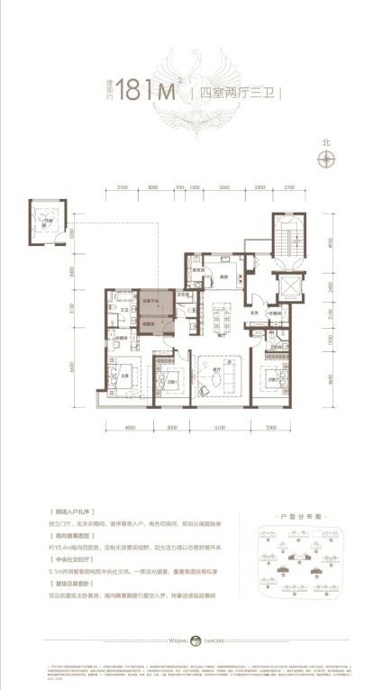
花290万买个央企精装房到底值不值?朋友张姐搬进新家半年,给我看了张开发商"白手套验房"的照片:戴着白手套摸完所有台面,愣是没蹭出灰。这波交付标准确实硬核!但她说最惊喜的是主卧改造:5.6米宽的南向飘窗被改成咖啡角,每天早起的动力都多了几分。不过改善族要注意,181㎡户型虽然五开间朝南,但厨房动线存在硬伤——备菜台离灶台足足1.5米,做饭像在做折返跑!
项目最大的底气来自家门口的双名校,实测从单元门口到东风西路小学新校区步行7分钟。但周边在建的众里景园和中海新盘,未来三年估计要上演"工地交响曲"。更现实的是,第一批业主得熬到2027年才能收房,这时间够生个二胎上幼儿园了!
是选择央企的稳妥交付?还是在意超长等待期?要超大横厅的仪式感?还是接受偏高的容积率?建议带把尺子去量量5米客厅开间,站在工地旁感受下噪音,答案自然浮现。
项目最大的底气来自家门口的双名校,实测从单元门口到东风西路小学新校区步行7分钟。但周边在建的众里景园和中海新盘,未来三年估计要上演"工地交响曲"。更现实的是,第一批业主得熬到2027年才能收房,这时间够生个二胎上幼儿园了!
是选择央企的稳妥交付?还是在意超长等待期?要超大横厅的仪式感?还是接受偏高的容积率?建议带把尺子去量量5米客厅开间,站在工地旁感受下噪音,答案自然浮现。
#新房探盘 #户型解析 #周边配套 #房屋质量
该内容疑似使用AI技术合成,请谨慎甄别
2026-01-15

说点什么...
00





