1/5
2.0容积率竟能撑起4种产品?这盘拿捏了改善痛点
"说好的43中飞了?"上周在项目研讨会上,开发商突然将教育配套改为"待定"。这种变化我从业遇过43次,但云徽颂仍值得注意:2.0低容社区规划堪称教科书,洋房与小高层纵向排列,既保证采光又营造40米楼间距的归家仪式感。
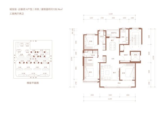
看过134套同类型盘,他家户型跨度最精明。121㎡入门改善做了270°飘窗,135㎡做到双套房,二胎家庭和三代同堂都照顾到。特别注意159㎡洋房阳台进深达2.4米,这个数据在同类竞品中最能还原度假感。
目前最大变量是教育配套落地进度,不过周边已建好九年一贯制学校备选。建议优先考虑小高层的中间楼层,这位置既能避开临街噪音,又能将园林景观尽收眼底。
看过134套同类型盘,他家户型跨度最精明。121㎡入门改善做了270°飘窗,135㎡做到双套房,二胎家庭和三代同堂都照顾到。特别注意159㎡洋房阳台进深达2.4米,这个数据在同类竞品中最能还原度假感。
目前最大变量是教育配套落地进度,不过周边已建好九年一贯制学校备选。建议优先考虑小高层的中间楼层,这位置既能避开临街噪音,又能将园林景观尽收眼底。
#新房探盘 #户型解析 #周边配套
该内容疑似使用AI技术合成,请谨慎甄别
2025-06-10

说点什么...
50





