1/12
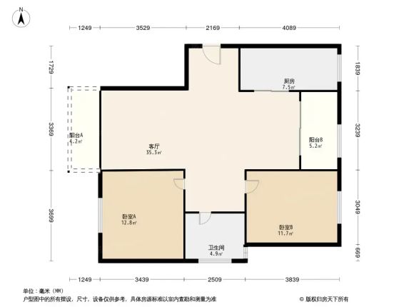
晋江南天裕景 2室2厅 91㎡ 1500元/月
标题:自家南向两居室出租啦✨采光超棒随时入住!
正文:
这套房子是我自己家在住的南天裕景小区🏠 91平两室两厅的格局真的超实用!因为工作调动要搬走,现在忍痛出租啦~
我家在11层(总高18层),朝南的户型每天阳光都能洒满整个客厅☀️ 主卧次卧都是明窗,卫生间干湿分离特别方便。简装修但维护得很好,墙面地板都很新净,直接拎包就能入住!
小区位置超便利的🚌 门口就是池峰路公交站,5分钟走到地铁口。周边超市、菜市场、小吃店一应俱全,生活超方便~物业也很负责,24小时保安巡逻超安心🔒
最满意的是这个户型南北通透🌬️ 夏天开窗特别凉快,冬天阳光暖暖的超级舒服!每月租金1500元(押一付三),比同小区同户型便宜了200多呢~
因为是自家房子直租,没有中介费哦!租期可以商量,最快明天就能入住~欢迎爱干净的小伙伴来看房呀!📲 私信我约时间吧~
正文:
这套房子是我自己家在住的南天裕景小区🏠 91平两室两厅的格局真的超实用!因为工作调动要搬走,现在忍痛出租啦~
我家在11层(总高18层),朝南的户型每天阳光都能洒满整个客厅☀️ 主卧次卧都是明窗,卫生间干湿分离特别方便。简装修但维护得很好,墙面地板都很新净,直接拎包就能入住!
小区位置超便利的🚌 门口就是池峰路公交站,5分钟走到地铁口。周边超市、菜市场、小吃店一应俱全,生活超方便~物业也很负责,24小时保安巡逻超安心🔒
最满意的是这个户型南北通透🌬️ 夏天开窗特别凉快,冬天阳光暖暖的超级舒服!每月租金1500元(押一付三),比同小区同户型便宜了200多呢~
因为是自家房子直租,没有中介费哦!租期可以商量,最快明天就能入住~欢迎爱干净的小伙伴来看房呀!📲 私信我约时间吧~
#房东直租 #租房看房 #周边配套 #户型解析
2025-10-11

说点什么...
00




