1/3
青特滨湖国际临街旺铺出租 52平空间灵活实用
小区名称:青特滨湖国际
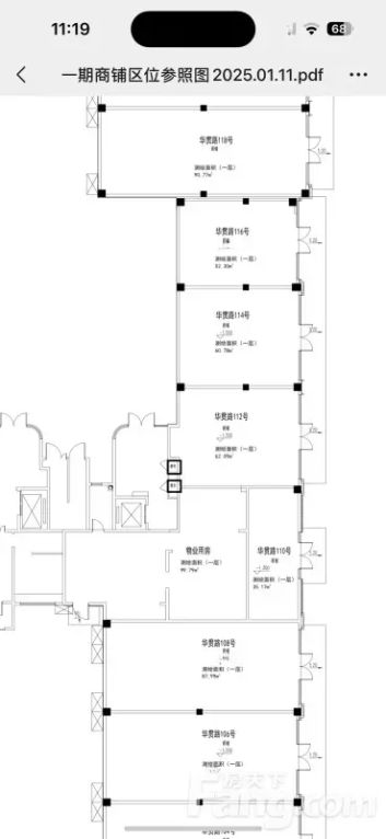
小区地址:山东省青岛市城阳区棘洪滩街道华贯路
第1层(共1层)
52.3平米,毛坯
户型是0室0厅1厨0卫0阳台,南朝向
商铺,租金3500元/月,年付
入住时间:随时入驻
【优质区位】商铺位于青特滨湖国际商圈,属于临街门面,人流量稳定,商业氛围浓厚,适合各类零售、服务等业态经营,区位优势明显。【合理空间】建筑面积52.3平方米,面宽6米、进深9米的方正格局,搭配4米层高,空间利用率高,可根据经营需求灵活布置,满足多种商业用途。【实惠条件】租金3500元/月,支持年付方式,提供1个月免租期,起租期12个月,无转让费,经营成本可控,适合创业者或品牌拓展使用。
小区地址:山东省青岛市城阳区棘洪滩街道华贯路
第1层(共1层)
52.3平米,毛坯
户型是0室0厅1厨0卫0阳台,南朝向
商铺,租金3500元/月,年付
入住时间:随时入驻
【优质区位】商铺位于青特滨湖国际商圈,属于临街门面,人流量稳定,商业氛围浓厚,适合各类零售、服务等业态经营,区位优势明显。【合理空间】建筑面积52.3平方米,面宽6米、进深9米的方正格局,搭配4米层高,空间利用率高,可根据经营需求灵活布置,满足多种商业用途。【实惠条件】租金3500元/月,支持年付方式,提供1个月免租期,起租期12个月,无转让费,经营成本可控,适合创业者或品牌拓展使用。
2025-08-11

说点什么...
00




