1/11
新城核心区155平五居室 业主自住诚意出售🏠
哥弟们、姐妹们!忍痛出手我家这套常绿·大悦城的大五居😭 原来准备自家住,超级舍不得!房子在新城区龙翔大道黄金位置,步行到河南城建学院只要10分钟,步行到白龟山水库也只要15分钟,小区内设幼儿园,周边1000米内配套小学、中学、大学、超市等配齐~
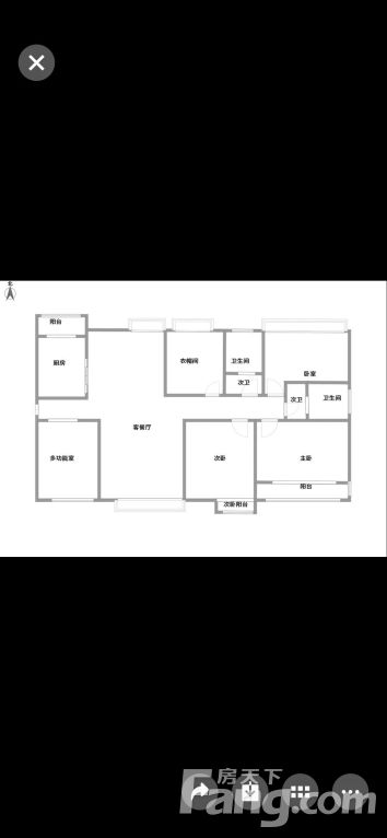
重点说说我家房子:155平超级方正!5个房间全明户型✨ 双卫生间,三阳台,主卧带卫生间,还带大阳台,东北向夏天特别凉快~19楼视野无敌,晚上能看到城市灯光秀🌆 2014年的楼房,毛坯房,方便个性化设计居住,物业24小时守门超安心!
楼房属于小区楼王位置,楼层19层位置优越,我家只要106万!是您追求高品质生活的首选,真心想给房子找个好主人,诚心购买的话,价格可以再谈,随时可以约看房呀联系电话13937584311
重点说说我家房子:155平超级方正!5个房间全明户型✨ 双卫生间,三阳台,主卧带卫生间,还带大阳台,东北向夏天特别凉快~19楼视野无敌,晚上能看到城市灯光秀🌆 2014年的楼房,毛坯房,方便个性化设计居住,物业24小时守门超安心!
楼房属于小区楼王位置,楼层19层位置优越,我家只要106万!是您追求高品质生活的首选,真心想给房子找个好主人,诚心购买的话,价格可以再谈,随时可以约看房呀联系电话13937584311
#房主直售 #周边配套 #户型解析
2025-04-17

说点什么...
00





