1/9
良庆 华润置地悦年华.润府 4室2厅 125.00㎡ 100
标题:自家南北通透四居室,华润悦年华高楼层好房急售🏠
正文:
忍痛割爱!💔 因为工作调动,不得不卖掉自己住了3年的家~华润置地悦年华·润府,2020年的次新房,保养得超好!✨
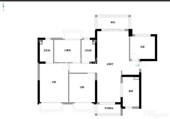
我家在28楼(总高31层),南北通透,采光和通风绝了!🌞🍃 125㎡做成了4室2厅,空间超宽敞,朋友来玩都夸布局合理~小区就在玉洞大道70号,周边商场、学校、地铁都在步行范围内,超方便!🛍️🚇
重点来啦❗️自家房子挂牌93万,单价算下来才7千多/㎡,比周边同户型便宜不少!💰 因为是诚心卖,价格可谈~
房子真的舍不得,但希望下个业主也能像我们一样爱它~❤️ 感兴趣的宝子随时约看房,拎包就能住!🔑
正文:
忍痛割爱!💔 因为工作调动,不得不卖掉自己住了3年的家~华润置地悦年华·润府,2020年的次新房,保养得超好!✨
我家在28楼(总高31层),南北通透,采光和通风绝了!🌞🍃 125㎡做成了4室2厅,空间超宽敞,朋友来玩都夸布局合理~小区就在玉洞大道70号,周边商场、学校、地铁都在步行范围内,超方便!🛍️🚇
重点来啦❗️自家房子挂牌93万,单价算下来才7千多/㎡,比周边同户型便宜不少!💰 因为是诚心卖,价格可谈~
房子真的舍不得,但希望下个业主也能像我们一样爱它~❤️ 感兴趣的宝子随时约看房,拎包就能住!🔑
#房主直售 #户型解析 #周边配套
2026-04-11

说点什么...
00





