1/6
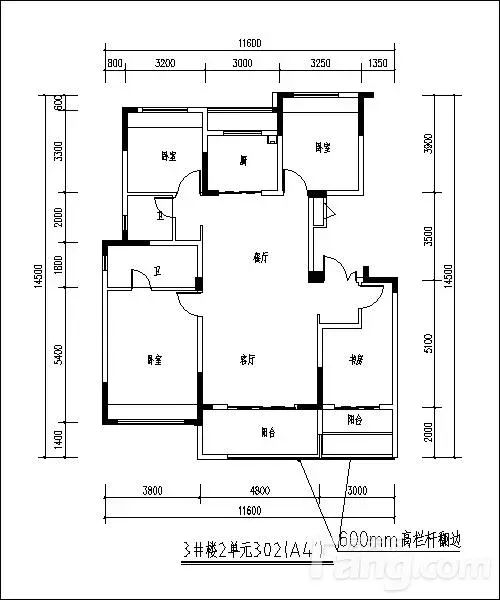
桐乡市中心招商雍华府 4室2厅 141.99㎡ 4500元/
标题:自家精装四居首次出租!招商雍华府141㎡南北通✨
正文:
终于决定把自家这套宝贝房子租出去啦!😊 招商雍华府3楼的精装四居,141.99㎡南北通透,阳光从早晒到晚🌞,连晾被子都能闻到太阳香~
**关于我家房子**:
▪️ **4室2厅**全明户型,每个房间都带大窗户,主卧还配独立卫生间🚿,朋友来玩都说像酒店套房!
▪️ **精装修**交付时花了心思,地板、橱柜全是品牌货,虽然照片是空房时拍的(为了显空间大📸),但家具家电都已配齐,直接拎包入住超省心~
▪️ **南向+独立阳台**,晾衣种花两不误,下午茶摆个小桌子超惬意🍵
**小区有多香**:
📍 **市中心黄金位置**!圆明路和平东路交界,出门就是商圈,买菜逛街步行10分钟搞定🛒。
🏡 招商的物业超负责,楼道每天打扫,绿化像小公园🌳,住过的邻居没有不夸的~
🚗 停车位超宽裕,访客来也不用兜圈找车位!
**出租细节**:
💰 **4500元/月**(押一付三),对比周边同户型真的性价比炸裂💥
⏰ **随时入住**!首次出租,房子干净得像新房,希望租客爱惜它~
私信看房吧!自家房子出租就像嫁女儿,一定要找到靠谱的“亲家”呀❤️~
正文:
终于决定把自家这套宝贝房子租出去啦!😊 招商雍华府3楼的精装四居,141.99㎡南北通透,阳光从早晒到晚🌞,连晾被子都能闻到太阳香~
**关于我家房子**:
▪️ **4室2厅**全明户型,每个房间都带大窗户,主卧还配独立卫生间🚿,朋友来玩都说像酒店套房!
▪️ **精装修**交付时花了心思,地板、橱柜全是品牌货,虽然照片是空房时拍的(为了显空间大📸),但家具家电都已配齐,直接拎包入住超省心~
▪️ **南向+独立阳台**,晾衣种花两不误,下午茶摆个小桌子超惬意🍵
**小区有多香**:
📍 **市中心黄金位置**!圆明路和平东路交界,出门就是商圈,买菜逛街步行10分钟搞定🛒。
🏡 招商的物业超负责,楼道每天打扫,绿化像小公园🌳,住过的邻居没有不夸的~
🚗 停车位超宽裕,访客来也不用兜圈找车位!
**出租细节**:
💰 **4500元/月**(押一付三),对比周边同户型真的性价比炸裂💥
⏰ **随时入住**!首次出租,房子干净得像新房,希望租客爱惜它~
私信看房吧!自家房子出租就像嫁女儿,一定要找到靠谱的“亲家”呀❤️~
#房东直租 #租房看房 #周边配套 #户型解析
2025-08-05

说点什么...
00




