1/6
济南历下区新盘探秘|中海·时光之境如何拿捏品质家庭痛点?
最近济南地产圈流行新说法:卷不动老破小学区房的,都在悄悄看这个盘。作为历下盛福片区的第四代住宅代表,实测发现项目真正出圈的竟是这些隐藏技能:
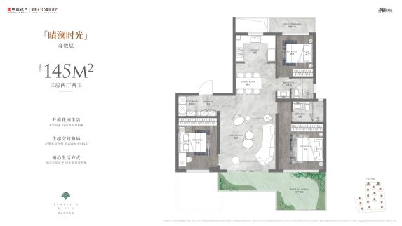
1️⃣ 动静分区玩出花:145㎡户型把中西厨做成社交中心,5.8米飘窗秒变亲子咖啡角,二胎家庭实测转身就能切换工作模式与带娃状态
2️⃣ 文化配套成彩蛋:省级文体三件套直线覆盖,带娃从美术馆到奥体中心只要一首歌的时间。但要注意步行到姜家庄地铁站需15分钟,雨天接送孩子需预留时间
3️⃣ 低密社区双面刃:35%绿化率+2.5容积率营造出难得静谧感,不过临近颖秀路楼栋早晚高峰会有车辆噪音,建议选东北向楼座
那些说济南主城找不到诗意栖居的,怕是没见过把美术馆搬进客厅,把体育馆化作后花园的生活解法。想要博物馆级的艺术氛围,想要奥体旁的活力生活圈,想要低密社区的静谧时光,这次开发商确实把主城改善的痒点挠准了
1️⃣ 动静分区玩出花:145㎡户型把中西厨做成社交中心,5.8米飘窗秒变亲子咖啡角,二胎家庭实测转身就能切换工作模式与带娃状态
2️⃣ 文化配套成彩蛋:省级文体三件套直线覆盖,带娃从美术馆到奥体中心只要一首歌的时间。但要注意步行到姜家庄地铁站需15分钟,雨天接送孩子需预留时间
3️⃣ 低密社区双面刃:35%绿化率+2.5容积率营造出难得静谧感,不过临近颖秀路楼栋早晚高峰会有车辆噪音,建议选东北向楼座
那些说济南主城找不到诗意栖居的,怕是没见过把美术馆搬进客厅,把体育馆化作后花园的生活解法。想要博物馆级的艺术氛围,想要奥体旁的活力生活圈,想要低密社区的静谧时光,这次开发商确实把主城改善的痒点挠准了
#新房探盘 #户型解析 #周边配套
该内容疑似使用AI技术合成,请谨慎甄别
2025-08-16

说点什么...
50





