1/4
中海·时光之境|历下新贵刷新济南品质住宅认知
听说最近济南人只分两种:看过中海·时光之境的,和其他人。这个四代住宅新物种,正用三重反常规操作颠覆市场:
■政策松绑≠降标减配
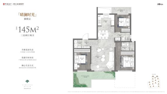
容积率2.5敢做空中花园+公建化外立面,利用新政外挑6米露台不计容。但别以为这是偷面积——实测建面145㎡户型得房率高达134%,飘窗进深达0.7米,连玄关柜都预留了独立收纳系统。
■中央生活区≠过气地段
项目所在的盛福板块藏着CBD后花园的隐秘价值:10分钟到奥体中心体育馆,步行距离达山东美术馆。但要注意周边现有商业配套较分散,日常采购需驱车5公里至万象城。
■改善户型≠面子工程
210㎡户型的L型岛台嵌入恒温酒柜,卫生间标配墙排马桶+双台盆,连次卧都预留了家政动线。不过部分户型厨房操作面宽仅3.6米,对烘焙爱好者略显局促。
你看到的不仅是阳台变空中庭院,更是政策松绑下的产品突围;你触摸的不仅是铝板幕墙,更是头部房企对改善需求的精准拿捏;你选择的不仅是四居室,更是城市核心区的生活话语权。
■政策松绑≠降标减配
容积率2.5敢做空中花园+公建化外立面,利用新政外挑6米露台不计容。但别以为这是偷面积——实测建面145㎡户型得房率高达134%,飘窗进深达0.7米,连玄关柜都预留了独立收纳系统。
■中央生活区≠过气地段
项目所在的盛福板块藏着CBD后花园的隐秘价值:10分钟到奥体中心体育馆,步行距离达山东美术馆。但要注意周边现有商业配套较分散,日常采购需驱车5公里至万象城。
■改善户型≠面子工程
210㎡户型的L型岛台嵌入恒温酒柜,卫生间标配墙排马桶+双台盆,连次卧都预留了家政动线。不过部分户型厨房操作面宽仅3.6米,对烘焙爱好者略显局促。
你看到的不仅是阳台变空中庭院,更是政策松绑下的产品突围;你触摸的不仅是铝板幕墙,更是头部房企对改善需求的精准拿捏;你选择的不仅是四居室,更是城市核心区的生活话语权。
#新房探盘、户型解析、周边配套、新楼盘开盘
该内容疑似使用AI技术合成,请谨慎甄别
2025-06-18

说点什么...
30





