1/10
南岗 信恒现代城 3室1厅 127.69㎡ 85万
标题:自家南北通透大三居,信恒现代城黄金楼层急售🏠
正文:
忍痛割爱啦!住了10年的自家房子要出手了,真的超级舍不得😭 这套信恒现代城的房子可是我们全家的心头好呢!
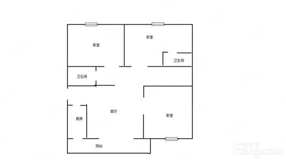
我家房子在6楼(总高8层),127㎡的大三居,南北通透的户型简直不要太舒服✨ 每天阳光洒进来,整个屋子都亮堂堂的~03年的房子保养得特别好,墙体特别厚实,隔音效果杠杠的!
小区位置绝了!南直路269号,周边要啥有啥~步行5分钟到公交站,10分钟到地铁口,上班通勤超方便🚌 楼下就是超市,对面是菜市场,生活超便利!
最爱的就是我家这个大客厅,足足30多平,朋友来家里聚会都夸宽敞!三个卧室都方方正正的,主卧还带个大飘窗,冬天晒太阳超舒服☀️
现在85万急售,这个价位在周边真的很难找到这么大的三居室了!因为要换房才忍痛出手,诚心买的宝宝们快来看房吧~钥匙就在中介那里,随时可以看房哦🔑
正文:
忍痛割爱啦!住了10年的自家房子要出手了,真的超级舍不得😭 这套信恒现代城的房子可是我们全家的心头好呢!
我家房子在6楼(总高8层),127㎡的大三居,南北通透的户型简直不要太舒服✨ 每天阳光洒进来,整个屋子都亮堂堂的~03年的房子保养得特别好,墙体特别厚实,隔音效果杠杠的!
小区位置绝了!南直路269号,周边要啥有啥~步行5分钟到公交站,10分钟到地铁口,上班通勤超方便🚌 楼下就是超市,对面是菜市场,生活超便利!
最爱的就是我家这个大客厅,足足30多平,朋友来家里聚会都夸宽敞!三个卧室都方方正正的,主卧还带个大飘窗,冬天晒太阳超舒服☀️
现在85万急售,这个价位在周边真的很难找到这么大的三居室了!因为要换房才忍痛出手,诚心买的宝宝们快来看房吧~钥匙就在中介那里,随时可以看房哦🔑
#房主直售 #周边配套 #户型解析
2025-07-28

说点什么...
10





