1/6
合肥顶豪圈秘密:伟星ONE139藏着这样的生活仪式感?
最近朋友圈都在传:合肥有钱人的消费降级是买2900万的房子。伟星ONE139首开30秒清空选房区,最高成交近三千万的魔幻场面,看得我手里的咖啡都不香了。
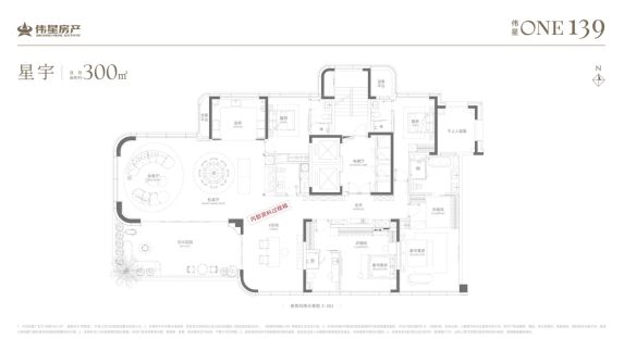
在滨湖做企业的张姐告诉我,她抢到的是建面338㎡的楼王户型。这个在别人眼里的「大平层天花板」,在她看来不过是个「能装下茶道室的容器」。开发商预留的双洄游动线,硬生生被她改造成了「茶香飘散路径」,连玄关的端景台都变成了岩茶展示架。
不过要说最戳中顶豪们的点,当属主卧套间里能跑圈的超大空间。实测6.8米面宽的飘窗区,硬是被某企业主改造成了「雪茄品鉴角」——雪松木定制柜恒温恒湿,这可比真金白银的装修更显门道。当然也不是没有槽点,项目离地铁站步行得10多分钟,对习惯司机接送的大佬来说倒也不算硬伤。
其实生活仪式感这件事,就像张姐书房里的太湖石摆件——有人觉得占地儿,有人视若珍宝。伟星ONE139的户型魔法,不过是把选择权交给了每个热爱生活的人。毕竟再大的房子,也要用心丈量生活的温度。
在滨湖做企业的张姐告诉我,她抢到的是建面338㎡的楼王户型。这个在别人眼里的「大平层天花板」,在她看来不过是个「能装下茶道室的容器」。开发商预留的双洄游动线,硬生生被她改造成了「茶香飘散路径」,连玄关的端景台都变成了岩茶展示架。
不过要说最戳中顶豪们的点,当属主卧套间里能跑圈的超大空间。实测6.8米面宽的飘窗区,硬是被某企业主改造成了「雪茄品鉴角」——雪松木定制柜恒温恒湿,这可比真金白银的装修更显门道。当然也不是没有槽点,项目离地铁站步行得10多分钟,对习惯司机接送的大佬来说倒也不算硬伤。
其实生活仪式感这件事,就像张姐书房里的太湖石摆件——有人觉得占地儿,有人视若珍宝。伟星ONE139的户型魔法,不过是把选择权交给了每个热爱生活的人。毕竟再大的房子,也要用心丈量生活的温度。
#新房探盘、新楼盘开盘、户型解析
该内容疑似使用AI技术合成,请谨慎甄别
2025-11-03

说点什么...
40





