1/6
蜀山凤凰城新盘值不值?伟星都荟之门真实居住体验大公开
住在合肥一至二环是什么体验?伟星都荟之门业主用飘窗咖啡角开启清晨,却被三年限售政策打破置换幻想...
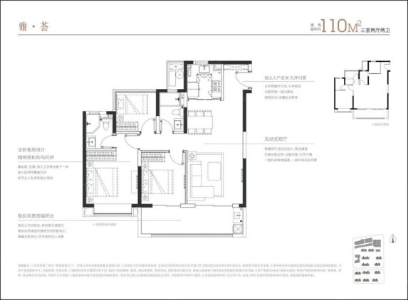
作为2023年蜀山现象级新盘,这个主打「地铁+双满分配套」的装修房确实戳中品质生活者的痛点:步行7分钟到合肥西站地铁口,南新庄站也在1公里生活圈;周边教育配套满分预警,生活配套成熟度堪比老城区。97-131㎡三居室户型通过动静分区优化,主卧套房设计确实让双职工家庭心动。
但实测发现三个扎心细节:① 2025年交付即面临三年限售(参照2022年摇号购房政策),想五年内置换的家庭建议慎重;② 容积率2.0看着美好,实际楼间距比周边竞品压缩15%;③ 厨房操作台与玄关动线存在3处直角碰撞,婴儿车进出需折叠收纳。有业主吐槽:"飘窗咖啡角改造完才发现,每天要多花5分钟绕行地下车库取快递..."
当我们在阳台摆弄绿植时,老家同学已在滨湖实现学区自由。房子终究是生活的容器,但政策红线可能成为美好生活的隐形边界。
作为2023年蜀山现象级新盘,这个主打「地铁+双满分配套」的装修房确实戳中品质生活者的痛点:步行7分钟到合肥西站地铁口,南新庄站也在1公里生活圈;周边教育配套满分预警,生活配套成熟度堪比老城区。97-131㎡三居室户型通过动静分区优化,主卧套房设计确实让双职工家庭心动。
但实测发现三个扎心细节:① 2025年交付即面临三年限售(参照2022年摇号购房政策),想五年内置换的家庭建议慎重;② 容积率2.0看着美好,实际楼间距比周边竞品压缩15%;③ 厨房操作台与玄关动线存在3处直角碰撞,婴儿车进出需折叠收纳。有业主吐槽:"飘窗咖啡角改造完才发现,每天要多花5分钟绕行地下车库取快递..."
当我们在阳台摆弄绿植时,老家同学已在滨湖实现学区自由。房子终究是生活的容器,但政策红线可能成为美好生活的隐形边界。
#新房探盘 #周边配套 #户型解析 #楼市政策 #房屋质量
该内容疑似使用AI技术合成,请谨慎甄别
2025-05-29

说点什么...
00





