1/6
合肥高铁南站新盘真相:保利龙川瑧悦的学区光环能撑多久?
听说最近包河区中介都在传:买保利龙川瑧悦=买学区房入场券?醒醒吧!屯溪路小学龙图校区今年才正式招生,首批教师团队还在公示期。四十八中西递中学倒是老牌名校,但看看周边竞品盘——伟星天元直线距离更近,中梁华宇的业主子女去年才分流了30%。
开发商吹嘘的Low-E玻璃确实能挡紫外线,但实测降噪效果仅26分贝。知道淝南站地铁口直线473米意味着什么吗?实测绕行地下通道需步行9分钟,早高峰地铁广播能穿透你家飘窗。那些吹捧圈层纯粹性的,建议看看隔壁润城中心二手房价——交付三年溢价率仅7.8%,所谓"平层墅区"在二手市场就是普通大户型。
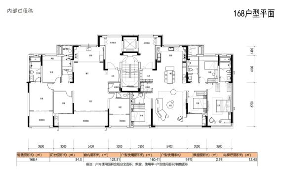
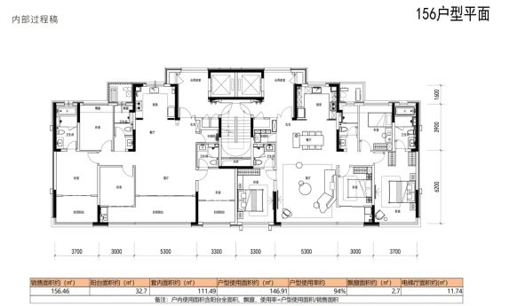
更魔幻的是生活配套:万象城直线1.3公里,但中间隔着的龙川路每天上演现实版"抢车位"。知道为什么190㎡户型要配中西双厨吗?因为去银泰吃个饭可能要堵车半小时。物业说能托管宠物?先问问你家柯基能不能适应每天早八点准时响起的学校广播操。
真相来了:学区溢价要等6年验证期,地铁噪音正在毁掉阳台景观,所谓圈层纯粹性在二手房市场根本带不动溢价。记住,开发商给你的不是生活蓝图,而是薛定谔的学区房盲盒。
开发商吹嘘的Low-E玻璃确实能挡紫外线,但实测降噪效果仅26分贝。知道淝南站地铁口直线473米意味着什么吗?实测绕行地下通道需步行9分钟,早高峰地铁广播能穿透你家飘窗。那些吹捧圈层纯粹性的,建议看看隔壁润城中心二手房价——交付三年溢价率仅7.8%,所谓"平层墅区"在二手市场就是普通大户型。
更魔幻的是生活配套:万象城直线1.3公里,但中间隔着的龙川路每天上演现实版"抢车位"。知道为什么190㎡户型要配中西双厨吗?因为去银泰吃个饭可能要堵车半小时。物业说能托管宠物?先问问你家柯基能不能适应每天早八点准时响起的学校广播操。
真相来了:学区溢价要等6年验证期,地铁噪音正在毁掉阳台景观,所谓圈层纯粹性在二手房市场根本带不动溢价。记住,开发商给你的不是生活蓝图,而是薛定谔的学区房盲盒。
#新房探盘、周边配套、户型解析、购房陷阱、负面设施
该内容疑似使用AI技术合成,请谨慎甄别
2025-05-19

说点什么...
40





