1/6
天河教育王牌+双地铁,西派天河序真能赢在起跑线?
天河家长选房有多难?既要学校硬核又要通勤快,真有这样的全能选手?上周遇见位企业高管张姐,从珠江新城到科学城看了半年房,最后被这里的教育配套圈粉——自家幼儿园到初中12年目送式上学,最远不超过500米。更惊喜的是项目自带广州中学教育集团资源,"钱学森班"这种硬核配置确实少见。
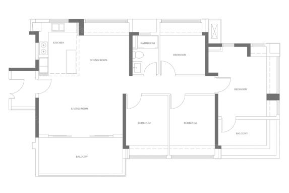
不过张姐也有纠结:125㎡起步的户型对二胎家庭来说正好,但850万起步价足够让普通中产望而却步。好在双地铁配置很顶,3号线梅花园站实测步行13分钟,未来18号线北延段开通后,金融城通勤能省半小时。高层景观倒真是加分项,西眺白云山,东望珠江新城天际线,这种双景视野天河确实难找。
对改善家庭来说,项目容积率3.0在天河新盘里算正常水平,但25%的绿化率略保守。2026年底交房的时间线,意味着要扛两年租房过渡期。真正戳中品质生活者的,可能是央企开发带来的安全感,以及金茂广场等成熟配套加持。
天河置业向来是道选择题,这里用教育资源+地铁资源画了重点,但总价门槛也明明白白。就像张姐说的:"选房和养娃一样,没有完美答案,只有当下最适合的选择。"
不过张姐也有纠结:125㎡起步的户型对二胎家庭来说正好,但850万起步价足够让普通中产望而却步。好在双地铁配置很顶,3号线梅花园站实测步行13分钟,未来18号线北延段开通后,金融城通勤能省半小时。高层景观倒真是加分项,西眺白云山,东望珠江新城天际线,这种双景视野天河确实难找。
对改善家庭来说,项目容积率3.0在天河新盘里算正常水平,但25%的绿化率略保守。2026年底交房的时间线,意味着要扛两年租房过渡期。真正戳中品质生活者的,可能是央企开发带来的安全感,以及金茂广场等成熟配套加持。
天河置业向来是道选择题,这里用教育资源+地铁资源画了重点,但总价门槛也明明白白。就像张姐说的:"选房和养娃一样,没有完美答案,只有当下最适合的选择。"
#新房探盘 #周边配套 #户型解析
该内容疑似使用AI技术合成,请谨慎甄别
2025-08-31

说点什么...
90





