1/19
赣县 源盛·公园里 4室2厅 142.00㎡ 93万
标题:自家公园旁四居室急售!142平仅93万🌳
正文:
忍痛割爱!这套陪我们度过三年美好时光的房子要出手了😭 自家住得超舒心,现在因为工作调动不得不转手,希望找到有缘人~
✨房子在**源盛·公园里**,2021年的次新房!每天开窗就是梅林湿地公园的绿意🌿 我家在25层(总高27层),采光无敌好,南北通透的板楼设计,阳光能洒满整个客厅☀️
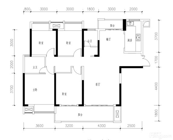
🏠户型是实用的4室2厅,142平大空间!主卧带超大飘窗,孩子房间正对公园景观。自己装修时特意选了环保材料,地板踩着超舒服~
💰现在只要93万!算下来单价才6千多/平,比周边新房便宜一大截!小区物业超负责,楼下就是公园跑道,爸妈来住天天晨练超开心~
急售!看房提前敲我,家具家电喜欢的都能谈!
正文:
忍痛割爱!这套陪我们度过三年美好时光的房子要出手了😭 自家住得超舒心,现在因为工作调动不得不转手,希望找到有缘人~
✨房子在**源盛·公园里**,2021年的次新房!每天开窗就是梅林湿地公园的绿意🌿 我家在25层(总高27层),采光无敌好,南北通透的板楼设计,阳光能洒满整个客厅☀️
🏠户型是实用的4室2厅,142平大空间!主卧带超大飘窗,孩子房间正对公园景观。自己装修时特意选了环保材料,地板踩着超舒服~
💰现在只要93万!算下来单价才6千多/平,比周边新房便宜一大截!小区物业超负责,楼下就是公园跑道,爸妈来住天天晨练超开心~
急售!看房提前敲我,家具家电喜欢的都能谈!
#房主直售 #户型解析 #周边配套
2026-02-12

说点什么...
00




