1/6
南城新盘143㎡客厅5.4米开间 这个阳台让我破防了
"这阳台我能发呆一整天!"闺蜜看完房当场转了定金
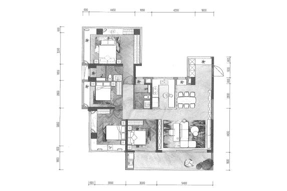
上周陪30岁的新生代家庭主理人Lisa看盘,她甩给我三个硬指标:客厅要能开瑜伽课、阳台要摆得下咖啡角、学校必须步行可达。在建发缦云样板间,5.4米客厅开间的尺度感让她惊呼"就是它",8.4米阳台瞬间被脑补成露营主题咖啡角。
地段确实能打:步行5分钟到阳光八小,政府2.7亿打造的教学楼正对社区大门。Lisa当场计算送娃时间:"这比我现住小区少花15分钟,够准备3份早餐便当。"不过要注意西侧在建旧改,未来三年施工期低楼层可能有噪音。
143㎡户型做到四开间朝南,主卧套间能塞下双台盆+独立衣帽间。但参观时发现厨房操作台稍局促,烘焙爱好者要合理规划动线。更惊喜的是车位配比1:1.8,Lisa老公的露营装备车终于不用抢车位。
如果你也在找有烟火气的改善盘,想要目送孩子上学的安心,想要在超大阳台上看云卷云舒,想要把生活装进每个功能空间——这个带着新中式美学的容器,真值得带上挑剔的眼光来逛逛。
上周陪30岁的新生代家庭主理人Lisa看盘,她甩给我三个硬指标:客厅要能开瑜伽课、阳台要摆得下咖啡角、学校必须步行可达。在建发缦云样板间,5.4米客厅开间的尺度感让她惊呼"就是它",8.4米阳台瞬间被脑补成露营主题咖啡角。
地段确实能打:步行5分钟到阳光八小,政府2.7亿打造的教学楼正对社区大门。Lisa当场计算送娃时间:"这比我现住小区少花15分钟,够准备3份早餐便当。"不过要注意西侧在建旧改,未来三年施工期低楼层可能有噪音。
143㎡户型做到四开间朝南,主卧套间能塞下双台盆+独立衣帽间。但参观时发现厨房操作台稍局促,烘焙爱好者要合理规划动线。更惊喜的是车位配比1:1.8,Lisa老公的露营装备车终于不用抢车位。
如果你也在找有烟火气的改善盘,想要目送孩子上学的安心,想要在超大阳台上看云卷云舒,想要把生活装进每个功能空间——这个带着新中式美学的容器,真值得带上挑剔的眼光来逛逛。
#新房探盘、样板间案例、周边配套、户型解析
该内容疑似使用AI技术合成,请谨慎甄别
2025-08-22

说点什么...
00





