1/7
邦盛复式山凭啥敢卖5000+?扒开长沙楼市最大「价格陷阱」
花50万住洋湖垸?长沙这个复式盘到底是真香还是深坑?实测发现这三点真相:
1️⃣「价格刺客」暗藏玄机
82万买复式乍看真香,但板块新房均价已跌至6000+。更扎心的是隔壁邦盛水岸御园二手房仅5040元/平,开发商自己卷自己,老业主集体心碎。
2️⃣板块规划原地踏步
说好的双地铁变成纸上蓝图,步行1.5公里才到3号线山塘站。40%绿化率看似美好,实测周边在建工地环绕,交付前都是开盲盒。
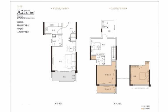
3️⃣复式≠真豪宅
93㎡做五居室?实测层高仅4.8米,楼上卧室需猫腰通过。动静分区成摆设,厨房头顶就是卧室,夜宵党分分钟吵醒全家人。
但客观说也有亮点:双卫设计确实实用,飘窗全赠送能改咖啡角。总价低至首付12万,适合预算有限又想住洋湖的年轻家庭。
房圈有句真理:低价盘要么是捡漏神器,要么是万年不动产。邦盛复式山属于哪种?看规划局最新文件,含浦未来5年没有大型基建,你细品...
1️⃣「价格刺客」暗藏玄机
82万买复式乍看真香,但板块新房均价已跌至6000+。更扎心的是隔壁邦盛水岸御园二手房仅5040元/平,开发商自己卷自己,老业主集体心碎。
2️⃣板块规划原地踏步
说好的双地铁变成纸上蓝图,步行1.5公里才到3号线山塘站。40%绿化率看似美好,实测周边在建工地环绕,交付前都是开盲盒。
3️⃣复式≠真豪宅
93㎡做五居室?实测层高仅4.8米,楼上卧室需猫腰通过。动静分区成摆设,厨房头顶就是卧室,夜宵党分分钟吵醒全家人。
但客观说也有亮点:双卫设计确实实用,飘窗全赠送能改咖啡角。总价低至首付12万,适合预算有限又想住洋湖的年轻家庭。
房圈有句真理:低价盘要么是捡漏神器,要么是万年不动产。邦盛复式山属于哪种?看规划局最新文件,含浦未来5年没有大型基建,你细品...
#新房探盘 #购房陷阱 #房价走势 #热门板块 #户型解析
该内容疑似使用AI技术合成,请谨慎甄别
2025-07-08

说点什么...
40





