1/6
开福寺站旁新盘真能“零公摊”?实测邦泰观宸142㎡的空间魔法
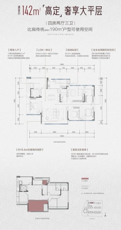
当开发商把得房率卷到117%是种什么体验?最近陪表姐张姐看房时,在邦泰观宸样板间亲测142㎡户型套内竟达166㎡!这位二胎宝妈原本看中北辰某盘190㎡总价超500万,转头发现这户型竟用传统四房面积实现了大平层空间感。
秘密藏在飘窗改造术里——全屋飘窗不计入产证面积,直接实现零公摊。主卧独立电梯厅设计让闺蜜直呼"私密性拿捏到位",近7米面宽主卧套间堪比星级酒店。更绝的是电梯厅改出的家政间,配上可变功能房,轻松实现四房改五房。
不过要注意的是,虽然单价1.6万看着友好,但总价集中在270-344万档位,比同片区高层贵出1/4。对于想住主城又想兼顾空间的新生代家庭,这套"空间魔术"确实值得细品。正如设计师所说:"真正的奢侈不是面积数字,而是把每寸空间都变成生活仪式感。"建议实地感受电梯入户的仪式动线,记得带上卷尺验证那些"偷来"的空间哦!
秘密藏在飘窗改造术里——全屋飘窗不计入产证面积,直接实现零公摊。主卧独立电梯厅设计让闺蜜直呼"私密性拿捏到位",近7米面宽主卧套间堪比星级酒店。更绝的是电梯厅改出的家政间,配上可变功能房,轻松实现四房改五房。
不过要注意的是,虽然单价1.6万看着友好,但总价集中在270-344万档位,比同片区高层贵出1/4。对于想住主城又想兼顾空间的新生代家庭,这套"空间魔术"确实值得细品。正如设计师所说:"真正的奢侈不是面积数字,而是把每寸空间都变成生活仪式感。"建议实地感受电梯入户的仪式动线,记得带上卷尺验证那些"偷来"的空间哦!
#新房探盘 #户型解析 #样板间案例
该内容疑似使用AI技术合成,请谨慎甄别
2025-06-30

说点什么...
70





