1/5
43㎡住进大泽湖心脏区?润和滨江广场的魔幻现实
听说最近望城的土拍价格快追上二环了,大泽湖却藏着7500元/㎡的漏网之鱼。当长沙大舞台设计图刷屏时,我发现这个万人场馆旁的43㎡小户型正在重新定义居住逻辑。
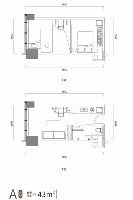
【衣柜里藏咖啡机】实测51㎡样板间,飘窗改造成全屋最惊艳角落:15cm台面拓展出咖啡操作台+书桌双模式,这种极致空间利用术让「蜗居」有了新解法。但4.5容积率带来的层高压迫感,建议实地感受。
【基建狂魔的馈赠】项目正卡在5号线南延线咽喉位,2027年长沙大舞台建成后将形成15分钟文体圈。不过现阶段周边更像大型施工现场,香炉洲大桥车流声需要关窗化解。
【生态悖论】号称湿地公园旁的盒子社区,30%绿化率在钢构森林里略显单薄。好在步行800米可达近自然湿地,夜跑族可打卡3公里滨水绿道。
当你纠结主城老破小还是远郊新盘时,这种用时间换空间的折中选择或许正合心意——就像健身完总要补充蛋白质,居住也需要基建红利作养分。
【衣柜里藏咖啡机】实测51㎡样板间,飘窗改造成全屋最惊艳角落:15cm台面拓展出咖啡操作台+书桌双模式,这种极致空间利用术让「蜗居」有了新解法。但4.5容积率带来的层高压迫感,建议实地感受。
【基建狂魔的馈赠】项目正卡在5号线南延线咽喉位,2027年长沙大舞台建成后将形成15分钟文体圈。不过现阶段周边更像大型施工现场,香炉洲大桥车流声需要关窗化解。
【生态悖论】号称湿地公园旁的盒子社区,30%绿化率在钢构森林里略显单薄。好在步行800米可达近自然湿地,夜跑族可打卡3公里滨水绿道。
当你纠结主城老破小还是远郊新盘时,这种用时间换空间的折中选择或许正合心意——就像健身完总要补充蛋白质,居住也需要基建红利作养分。
#新房探盘 #周边配套 #户型解析 #城市规划
该内容疑似使用AI技术合成,请谨慎甄别
2025-06-17

说点什么...
50





