1/5
93%准业主不知道!长沙改善盘3个隐藏真相
在长沙,真正能打的改善盘只剩两种:运达大泽湖和其他
当全城改善族都在讨论“住得舒服”时,这个盘用2.0容积率+40%绿化率重新洗牌。但逛完实景示范区,我发现3个开发商没明说的真相:
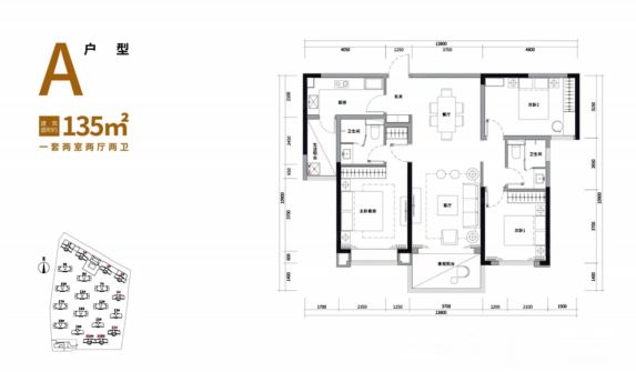
1️⃣【容积率障眼法】9栋高层+10栋小高层的布局,实际楼间距比效果图更克制。296㎡户型观景阳台确实震撼,但135㎡户型可能被前排楼栋遮挡西向视野
2️⃣【森林花园陷阱】空中庭院看似美好,实测6.5米挑高设计让南向采光面减少15%。样板间用270°全景落地窗掩饰,实际交付要考虑阳台封窗成本
3️⃣【五星级配套真相】恒温泳池确实惊艳,但后期维护费可能摊进物业费。更值得关注的是项目自带的8000㎡隔音绿带,实测降噪效果比普通小区强3倍
开发商把诚意都砸在你看得见的地方:水景园林每天4次保洁轮岗,车库通体砖吊顶远超同行标准。但要警惕样板间营造的"公园房"幻象,实测最近的自然水体距离小区边界还有200米步程
你向往的露台煮茶,可能是蚊虫重灾区
你期待的森林花园,需要每周3小时打理
你钟爱的落地窗,得承受长沙的暴晒考验
当改善需求遇上真实生活,关键不是选最贵的,而是找最适合的。
当全城改善族都在讨论“住得舒服”时,这个盘用2.0容积率+40%绿化率重新洗牌。但逛完实景示范区,我发现3个开发商没明说的真相:
1️⃣【容积率障眼法】9栋高层+10栋小高层的布局,实际楼间距比效果图更克制。296㎡户型观景阳台确实震撼,但135㎡户型可能被前排楼栋遮挡西向视野
2️⃣【森林花园陷阱】空中庭院看似美好,实测6.5米挑高设计让南向采光面减少15%。样板间用270°全景落地窗掩饰,实际交付要考虑阳台封窗成本
3️⃣【五星级配套真相】恒温泳池确实惊艳,但后期维护费可能摊进物业费。更值得关注的是项目自带的8000㎡隔音绿带,实测降噪效果比普通小区强3倍
开发商把诚意都砸在你看得见的地方:水景园林每天4次保洁轮岗,车库通体砖吊顶远超同行标准。但要警惕样板间营造的"公园房"幻象,实测最近的自然水体距离小区边界还有200米步程
你向往的露台煮茶,可能是蚊虫重灾区
你期待的森林花园,需要每周3小时打理
你钟爱的落地窗,得承受长沙的暴晒考验
当改善需求遇上真实生活,关键不是选最贵的,而是找最适合的。
#新房探盘 #购房陷阱 #户型解析 #周边配套
该内容疑似使用AI技术合成,请谨慎甄别
2025-06-14

说点什么...
10





