1/7
运达大泽湖值不值得冲?看完这篇再决定!
听说最近长沙买房人都在问:没看过大泽湖的日落,算什么品质生活?🌅但真正的湖居生活远不止朋友圈九宫格,实测后我发现了这些真相👇
❶【景观确实无敌,但出片要挑时间】
湖边步道随手拍出电影感是真的!不过实测5-7点的"黄金两小时"太短暂,其它时段逆光严重,下午茶摆拍档建议选东南向户型,飘窗咖啡角☕️才能避开死亡顶光
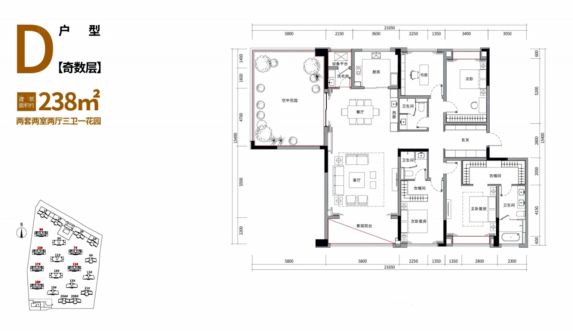
❷【户型越大,越考验收纳术】
135㎡三房够用但没惊喜,296㎡五房主卧能放浴缸🛁但得房率仅75%。有个反常识发现:全屋定制做整面柜子反而会吃掉大面宽优势,建议用模块化家具打造洄游动线
❸【配套成熟≠说走就走】
实测步行到地铁4号线(规划)要18分钟,去滨江需自驾25分钟。不过楼下自带的咖啡图书馆和生鲜市集🍃,确实能让宅家党实现零出小区生存
总结版真相:
适合追求治愈系慢生活的新生代家庭
接受三环外定位+有车一族更香
急着入住的要谨慎(2026年底交房)
在长沙买房,选择比努力更重要
❶【景观确实无敌,但出片要挑时间】
湖边步道随手拍出电影感是真的!不过实测5-7点的"黄金两小时"太短暂,其它时段逆光严重,下午茶摆拍档建议选东南向户型,飘窗咖啡角☕️才能避开死亡顶光
❷【户型越大,越考验收纳术】
135㎡三房够用但没惊喜,296㎡五房主卧能放浴缸🛁但得房率仅75%。有个反常识发现:全屋定制做整面柜子反而会吃掉大面宽优势,建议用模块化家具打造洄游动线
❸【配套成熟≠说走就走】
实测步行到地铁4号线(规划)要18分钟,去滨江需自驾25分钟。不过楼下自带的咖啡图书馆和生鲜市集🍃,确实能让宅家党实现零出小区生存
总结版真相:
适合追求治愈系慢生活的新生代家庭
接受三环外定位+有车一族更香
急着入住的要谨慎(2026年底交房)
在长沙买房,选择比努力更重要
#新房探盘 #户型解析 #周边配套
该内容疑似使用AI技术合成,请谨慎甄别
2025-06-12

说点什么...
00





