1/4
省府南3地铁口房值吗?1万/㎡+九年一贯制 是馅饼还是陷阱?
住在三地铁交汇处是种什么体验?这个省府南的神秘盘最近被问爆了!实测发现8分钟到1号线,但交房要等到2025年...
■ 长株潭融城C位到底有多香?
板块潜力没得说,但周边还处在开发期!实测步行到中信广场站8分钟,7号线在建、5号线规划中,未来通勤确实方便。不过要注意先锋站东广场还没建成,现阶段商业配套得依赖2公里外的友阿奥莱。
■ 名校学位房真相大起底!
师大附中双语确实在教育局红名单上,但2025年才交房存在划片微调风险。小区自带幼儿园倒是加分项,不过需要确认入学政策是否要求人户一致。
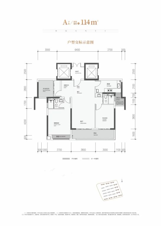
■ 精装1万/㎡真是捡漏?
比周边竞品低2000+的价差确实诱人,但要注意交付标准!中央空调+地暖的配置虽良心,可样板间展示的智能马桶在合同里变成了普通款。2.09低密社区是真的,但北侧高压线走廊需现场确认。
站在生活容器角度看,这里更适合能接受发展期阵痛的新生代家庭。精装细节可圈可点,但急着入住的品质生活者建议实地考察周边现状。记住:没有完美的房子,只有合适的选择!
■ 长株潭融城C位到底有多香?
板块潜力没得说,但周边还处在开发期!实测步行到中信广场站8分钟,7号线在建、5号线规划中,未来通勤确实方便。不过要注意先锋站东广场还没建成,现阶段商业配套得依赖2公里外的友阿奥莱。
■ 名校学位房真相大起底!
师大附中双语确实在教育局红名单上,但2025年才交房存在划片微调风险。小区自带幼儿园倒是加分项,不过需要确认入学政策是否要求人户一致。
■ 精装1万/㎡真是捡漏?
比周边竞品低2000+的价差确实诱人,但要注意交付标准!中央空调+地暖的配置虽良心,可样板间展示的智能马桶在合同里变成了普通款。2.09低密社区是真的,但北侧高压线走廊需现场确认。
站在生活容器角度看,这里更适合能接受发展期阵痛的新生代家庭。精装细节可圈可点,但急着入住的品质生活者建议实地考察周边现状。记住:没有完美的房子,只有合适的选择!
#新房探盘、周边配套、购房陷阱、热门板块、城市规划
该内容疑似使用AI技术合成,请谨慎甄别
2025-06-01

说点什么...
00





