1/5
芙蓉滨河路惊现「原木治愈系」!116㎡起抢门墙柜一体神户型
“这户型改造太绝了!”上周末陪闺蜜看房,她指着美的云樾样板间两眼放光。三面采光的横厅里,浅米色柜体从玄关延伸到餐厅,木色格栅墙与悬浮柜体无缝衔接——全屋竟找不到一条阳角线!
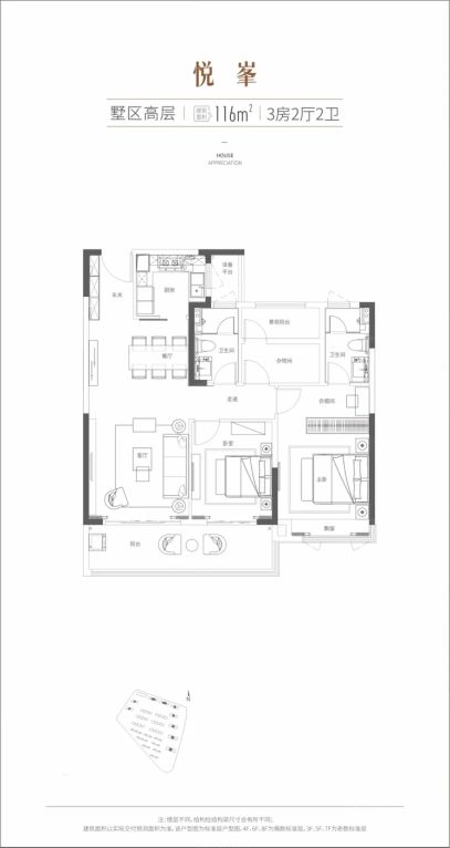
作为从业20年的地产老兵,我必须说:这种门墙柜一体化设计,在长沙二环内新盘里属实难得。116㎡户型通过洄游动线,硬生生造出双套房格局;142㎡边户270°采光面,主卫还能塞下双台盆+浴缸。
但注意!项目北侧规划有商业地块,低楼层可能会有噪音。不过东雅中学+育英三小双书包配置,对新生代家庭确实友好。建议重点看7层以上房源,既能俯瞰浏阳河湾,又能避开未来商业体遮挡。
记住:好户型能化解80%的生活矛盾,剩下的20%交给窗外的河景。
作为从业20年的地产老兵,我必须说:这种门墙柜一体化设计,在长沙二环内新盘里属实难得。116㎡户型通过洄游动线,硬生生造出双套房格局;142㎡边户270°采光面,主卫还能塞下双台盆+浴缸。
但注意!项目北侧规划有商业地块,低楼层可能会有噪音。不过东雅中学+育英三小双书包配置,对新生代家庭确实友好。建议重点看7层以上房源,既能俯瞰浏阳河湾,又能避开未来商业体遮挡。
记住:好户型能化解80%的生活矛盾,剩下的20%交给窗外的河景。
#新房探盘 #户型解析 #周边配套
该内容疑似使用AI技术合成,请谨慎甄别
2025-06-01

说点什么...
00





