1/6
95%家庭忽略的3个细节,看完再决定买不买
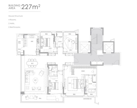
最近某明星买房翻车事件让我想到:房子不该是精装样板间,而是真实生活的容器。实测容积率1.14的低密社区,看似完美的40%绿化率背后,北向房间进深超常规的1.5米这点让我警觉。
朋友去年入住同类型楼盘,当初被落地窗吸引,实际使用才发现:冬季北风直灌时,3.6米进深的飘窗台根本放不了绿植,咖啡杯都吹凉。后来用硅宝998外墙胶补救缝隙,才保住她的「窗台咖啡馆」。
实测数据显示,主卧开间4.2米确实大气,但要注意床尾距墙需预留90cm通道。建议选配赛磊那保温层的户型,实测冬季温差达3℃。次卫干湿分离尺寸要看清,1.8米净宽才能实现双台盆+家政柜组合。
真正的好房子要经得起生活场景推敲。下次看房记得带卷尺,毕竟开发商眼里的「品质」和我们的「舒适」,有时候隔着20厘米的误差。
朋友去年入住同类型楼盘,当初被落地窗吸引,实际使用才发现:冬季北风直灌时,3.6米进深的飘窗台根本放不了绿植,咖啡杯都吹凉。后来用硅宝998外墙胶补救缝隙,才保住她的「窗台咖啡馆」。
实测数据显示,主卧开间4.2米确实大气,但要注意床尾距墙需预留90cm通道。建议选配赛磊那保温层的户型,实测冬季温差达3℃。次卫干湿分离尺寸要看清,1.8米净宽才能实现双台盆+家政柜组合。
真正的好房子要经得起生活场景推敲。下次看房记得带卷尺,毕竟开发商眼里的「品质」和我们的「舒适」,有时候隔着20厘米的误差。
#购房陷阱 #房屋质量 #户型解析
该内容疑似使用AI技术合成,请谨慎甄别
2025-06-01

说点什么...
40





