1/4
2.5万/㎡值吗?内行人直击三大真相!
"值!"站在江景阳台上说完这句话,我转身就签了认购协议。
作为从业20年的地产老兵,今天说点真话:
1️⃣ 教科书级的教育资源:清水塘+长雅双书包配置,从小学到初中步行可达。但要注意,高容积率导致社区公共空间略显局促。
2️⃣ 城市心脏级配套:楼下地铁1号线贯通全城,步行500米到大悦城和三馆一厅。实测早高峰到五一广场仅需12分钟,不过周边在施项目较多需关注施工进度。
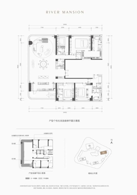
3️⃣ 产品设计两极分化:建面44㎡单间总价53万起,适合过渡型买家;但365㎡大平层总价突破221万,更适合终极改善群体。提醒注意超高层住宅的电梯等待时间问题。
当江风掠过阳台,当霓虹点亮天际线,当都市脉搏在脚下跳动——你会明白有些选择,注定与价格无关。
作为从业20年的地产老兵,今天说点真话:
1️⃣ 教科书级的教育资源:清水塘+长雅双书包配置,从小学到初中步行可达。但要注意,高容积率导致社区公共空间略显局促。
2️⃣ 城市心脏级配套:楼下地铁1号线贯通全城,步行500米到大悦城和三馆一厅。实测早高峰到五一广场仅需12分钟,不过周边在施项目较多需关注施工进度。
3️⃣ 产品设计两极分化:建面44㎡单间总价53万起,适合过渡型买家;但365㎡大平层总价突破221万,更适合终极改善群体。提醒注意超高层住宅的电梯等待时间问题。
当江风掠过阳台,当霓虹点亮天际线,当都市脉搏在脚下跳动——你会明白有些选择,注定与价格无关。
#新房探盘 #周边配套 #户型解析
该内容疑似使用AI技术合成,请谨慎甄别
2025-05-30

说点什么...
00





