1/3
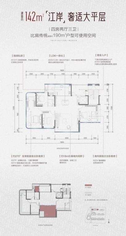
142㎡=传统190㎡?实测主城得房率天花板
听说最近长沙楼市只有两种盘——敢玩实景拆墙的,和不敢的。某项目开放日直接砸墙展示设备平台改造,结果被扒出空调机位比图纸缩水30cm。
上个月陪朋友看房,样板间展示的飘窗改书桌堪称空间魔术。结果用激光测距仪发现,实际交付要拆除的隔墙里藏着燃气管道。开发商美其名曰"创意改造",实则在验收边缘疯狂试探。
更魔幻的是某项目把电梯厅算进套内面积,美滋滋宣传得房率118%。实测发现要穿过消防门才能进户,紧急逃生时怕是要上演现实版密室逃脱。这些所谓"偷面积"操作,本质上都是把业主当小白鼠。
当然也有真·硬核选手,把检修井做成嵌入式储物柜,飘窗结构提前预埋加固钢板。但这类良心设计往往藏着魔鬼细节:阳台玻璃栏杆外挂5cm,实际使用空间直接打九折。
当你站在样板间赞叹空间魔术时,记得带把卷尺;
当你听说得房率超100%时,查查验收图纸;
当你被低密社区概念打动时,算算真实楼间距。
主城买房哪有什么神话,不过是列文虎克们较真的胜利。
上个月陪朋友看房,样板间展示的飘窗改书桌堪称空间魔术。结果用激光测距仪发现,实际交付要拆除的隔墙里藏着燃气管道。开发商美其名曰"创意改造",实则在验收边缘疯狂试探。
更魔幻的是某项目把电梯厅算进套内面积,美滋滋宣传得房率118%。实测发现要穿过消防门才能进户,紧急逃生时怕是要上演现实版密室逃脱。这些所谓"偷面积"操作,本质上都是把业主当小白鼠。
当然也有真·硬核选手,把检修井做成嵌入式储物柜,飘窗结构提前预埋加固钢板。但这类良心设计往往藏着魔鬼细节:阳台玻璃栏杆外挂5cm,实际使用空间直接打九折。
当你站在样板间赞叹空间魔术时,记得带把卷尺;
当你听说得房率超100%时,查查验收图纸;
当你被低密社区概念打动时,算算真实楼间距。
主城买房哪有什么神话,不过是列文虎克们较真的胜利。
#购房陷阱 #房屋质量 #样板间案例
该内容疑似使用AI技术合成,请谨慎甄别
2025-05-19

说点什么...
50





