1/6
通气融创玖玺国际 1室1厅 61.69㎡ 2200元/
标题:自家南向一居室出租,会展中心旁超方便!🏠
正文:
终于要把自家这套小窝租出去啦!✨ 房子在**融创玖玺国际**,亚太路9号,位置真的绝了!下楼走两步就是会展中心,逛街、吃饭、看展都超方便~
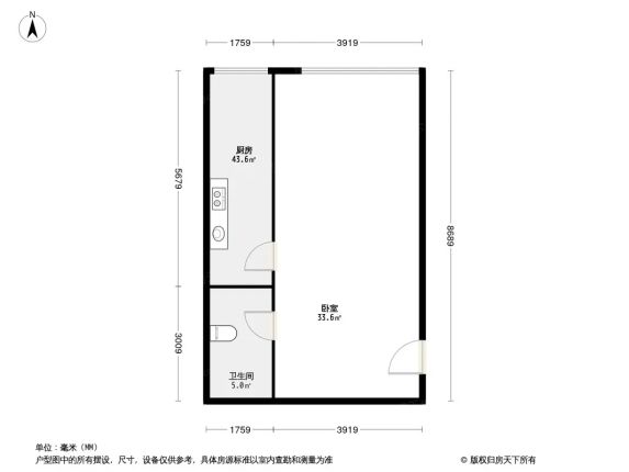
我家是**南向**的,61.69㎡的一居室,阳光超级好☀️,白天根本不用开灯!虽然是3楼,但采光完全不受影响,而且不用等电梯,上下楼特别快~装修是**豪华办公风**,但通天然气可以做饭🍳,我还配了工位,适合居家办公或者小情侣住~
交通更是没得说!🚇轻轨站就在门口,公交站步行1分钟,去哪都方便。租金2200元/月,押一付三,价格真的很良心了!
看房随时都行,我本人带看,不用担心中介费~有需要的宝子快来滴滴我!💌
正文:
终于要把自家这套小窝租出去啦!✨ 房子在**融创玖玺国际**,亚太路9号,位置真的绝了!下楼走两步就是会展中心,逛街、吃饭、看展都超方便~
我家是**南向**的,61.69㎡的一居室,阳光超级好☀️,白天根本不用开灯!虽然是3楼,但采光完全不受影响,而且不用等电梯,上下楼特别快~装修是**豪华办公风**,但通天然气可以做饭🍳,我还配了工位,适合居家办公或者小情侣住~
交通更是没得说!🚇轻轨站就在门口,公交站步行1分钟,去哪都方便。租金2200元/月,押一付三,价格真的很良心了!
看房随时都行,我本人带看,不用担心中介费~有需要的宝子快来滴滴我!💌
#房东直租 #租房看房 #周边配套
2026-02-26

说点什么...
00





