1/13
忍痛出售自家190平精装别墅,160万急出!
因为工作调动不得不搬走,希望找个有缘人继续爱护它!
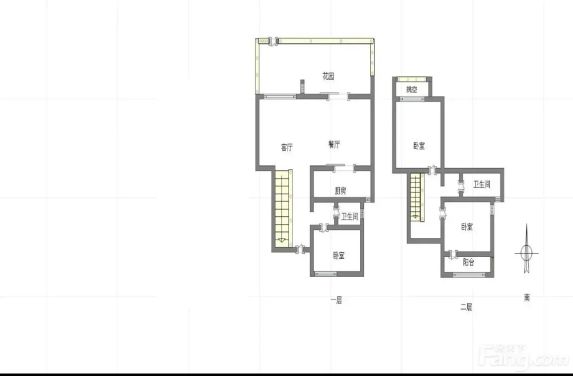
我家在保亿御景玖园别墅区,2019年建的新房,190平大四房两卫,西南朝向采光超好🌞!一楼带小院,总共三层住着特别宽敞,邻居都是素质超高的家庭~
重点说说自家房子的亮点✨:
1️⃣ 负一层楼层高,可做现浇做两层
2️⃣ 厨房可做在负一楼,客厅宽敞大气
3️⃣ 小区绿化像公园,步行5分钟就是公交站
现在160万就出,均价才8千多/平,比周边新房便宜30%!中介天天打电话想收房,但我更想直接卖给真心要住的家庭🏡 看房提前约,钥匙就在物业~
我家在保亿御景玖园别墅区,2019年建的新房,190平大四房两卫,西南朝向采光超好🌞!一楼带小院,总共三层住着特别宽敞,邻居都是素质超高的家庭~
重点说说自家房子的亮点✨:
1️⃣ 负一层楼层高,可做现浇做两层
2️⃣ 厨房可做在负一楼,客厅宽敞大气
3️⃣ 小区绿化像公园,步行5分钟就是公交站
现在160万就出,均价才8千多/平,比周边新房便宜30%!中介天天打电话想收房,但我更想直接卖给真心要住的家庭🏡 看房提前约,钥匙就在物业~
#房主直售
2025-08-10

说点什么...
10





