1/10
简阳 世茂云湖 2室2厅 83.08㎡ 109万
世茂云湖
四川省简阳市三岔湖风景区董家埂乡龙口村
第1层,共3层
83.08平米
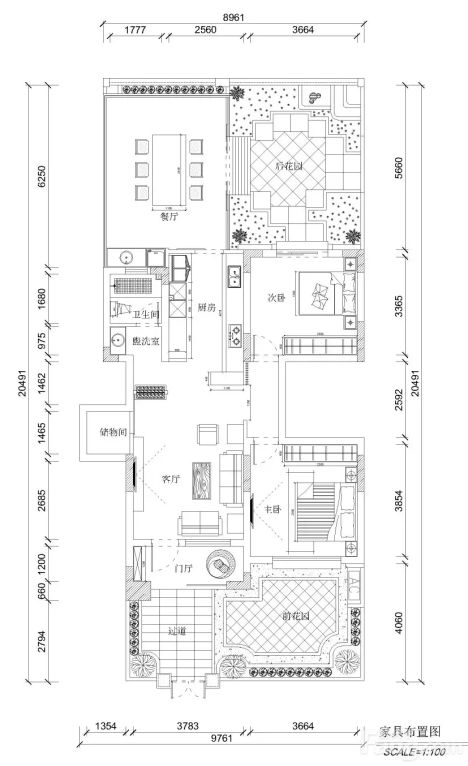
户型是2室2厅1卫,南朝向
售价109万
房子户型方正,布局合理,每一寸空间都得到了充分利用。而最让人心动的是总面积达86平米的花园!前花园30平米,后花园56平米,其中26平米已巧妙装修为餐厅并连通大厨房,让烹饪与用餐都能融入自然,增添无限乐趣。剩下的30平米后花园空间有绿植、有鱼池和户外座椅,满足你对生活的所有想象。屋内装修精致又温馨,每一处细节都经过精心设计。柔和的灯光、舒适的色彩搭配,一进门就能感受到家的温暖。所有设施齐全,无需增添即可拎包入住,此外,还有2平米的私密储物间,解决收纳难题,让生活更加井井有条。装修及设施总共花费38W。
四川省简阳市三岔湖风景区董家埂乡龙口村
第1层,共3层
83.08平米
户型是2室2厅1卫,南朝向
售价109万
房子户型方正,布局合理,每一寸空间都得到了充分利用。而最让人心动的是总面积达86平米的花园!前花园30平米,后花园56平米,其中26平米已巧妙装修为餐厅并连通大厨房,让烹饪与用餐都能融入自然,增添无限乐趣。剩下的30平米后花园空间有绿植、有鱼池和户外座椅,满足你对生活的所有想象。屋内装修精致又温馨,每一处细节都经过精心设计。柔和的灯光、舒适的色彩搭配,一进门就能感受到家的温暖。所有设施齐全,无需增添即可拎包入住,此外,还有2平米的私密储物间,解决收纳难题,让生活更加井井有条。装修及设施总共花费38W。
#房主直售 #户型解析
2025-08-30

说点什么...
00




