1/10
金牛蜀汉路两河锦地 2室2厅 86.88㎡ 2100元/月
标题:自家精装套二出租🏠 两河锦地高楼层视野超棒!
正文:
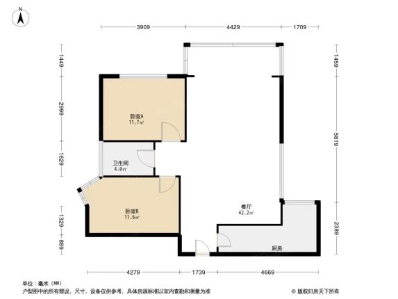
这套房子是我自己家在住的,因为工作调动要搬走,真心舍不得😭 房子在「两河锦地」16楼(总高20+),86㎡标准套二,东南朝向阳光超足☀️ 每天起床都能看到中庭绿植,晚上安静得能听见蝉鸣~
✨ **我家亮点**
▪️精装修+全屋家具家电(空调、冰箱、洗衣机都有!)直接拎包入住🧳
▪️主卧带独立阳台,次卧南北通透,卫生间干湿分离🚿
▪️16层视野无敌!天气好时能看到环球中心🌆
🏡 **小区超方便**
▪️过条马路就是「蜀西实验中学」,家长陪读超省心📚
▪️步行5分钟到金科地铁站,7号线/2号线换乘超快🚇
▪️楼下菜鸟驿站、红旗连锁、火锅店啥都有,生活超便利🛒
💰租金2100/月(押一付三),比同小区便宜!因为是自家房子直租,没有中介费~8月16号就能入住,欢迎来看房呀!📅
(悄悄说:窗帘和绿植都是我精心挑的,续租的话可以送给你~🌿)
正文:
这套房子是我自己家在住的,因为工作调动要搬走,真心舍不得😭 房子在「两河锦地」16楼(总高20+),86㎡标准套二,东南朝向阳光超足☀️ 每天起床都能看到中庭绿植,晚上安静得能听见蝉鸣~
✨ **我家亮点**
▪️精装修+全屋家具家电(空调、冰箱、洗衣机都有!)直接拎包入住🧳
▪️主卧带独立阳台,次卧南北通透,卫生间干湿分离🚿
▪️16层视野无敌!天气好时能看到环球中心🌆
🏡 **小区超方便**
▪️过条马路就是「蜀西实验中学」,家长陪读超省心📚
▪️步行5分钟到金科地铁站,7号线/2号线换乘超快🚇
▪️楼下菜鸟驿站、红旗连锁、火锅店啥都有,生活超便利🛒
💰租金2100/月(押一付三),比同小区便宜!因为是自家房子直租,没有中介费~8月16号就能入住,欢迎来看房呀!📅
(悄悄说:窗帘和绿植都是我精心挑的,续租的话可以送给你~🌿)
#房东直租 #租房看房 #周边配套 #户型解析
2025-08-15

说点什么...
00





