1/4
东区调规降总价,西区业主直呼背刺?
"听说东区总价降了22%?"坐在售楼处的西区业主老张捏着户型图的手微微发抖...作为房山首个"好房子"试点,颐知筑东区这次调规直接把楼市扔进油锅:
1️⃣【阳台越送越大,房子越做越小】
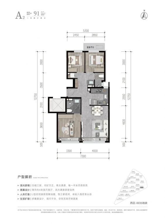
91㎡三居总价压进300万门槛,但得房率全靠1.8米宽阳台硬撑。开发商这波"面积缩水换总价下沉"的玩法,对刚需来说像是量身定制的糖果衣炮弹。
2️⃣【西区业主维权名场面+1】
去年4.2万/㎡入手的邻居们,现在看着同地块3.3万/㎡的新户型,手里的购房合同瞬间变成扎心文件。东区赠送飘窗+阳台的升级配置,让西区库存直接变"前任"。
3️⃣【板块价值被强行拉平】
良乡核心区突然批量出货300万级产品,隔壁天恒水岸壹号的中产改善盘正在连夜改营销方案。这个漏斗型定价策略,正在重塑整个房山的价格认知体系。
真相是:没有完美的调规,只有流动的价值。这次升级本质是开发商在政策框架下的生存实验,阳台面积当钱花的时代,你会为这波操作买单吗?
1️⃣【阳台越送越大,房子越做越小】
91㎡三居总价压进300万门槛,但得房率全靠1.8米宽阳台硬撑。开发商这波"面积缩水换总价下沉"的玩法,对刚需来说像是量身定制的糖果衣炮弹。
2️⃣【西区业主维权名场面+1】
去年4.2万/㎡入手的邻居们,现在看着同地块3.3万/㎡的新户型,手里的购房合同瞬间变成扎心文件。东区赠送飘窗+阳台的升级配置,让西区库存直接变"前任"。
3️⃣【板块价值被强行拉平】
良乡核心区突然批量出货300万级产品,隔壁天恒水岸壹号的中产改善盘正在连夜改营销方案。这个漏斗型定价策略,正在重塑整个房山的价格认知体系。
真相是:没有完美的调规,只有流动的价值。这次升级本质是开发商在政策框架下的生存实验,阳台面积当钱花的时代,你会为这波操作买单吗?
#房价走势 #购房陷阱 #户型解析 #楼市政策 #热门板块
该内容疑似使用AI技术合成,请谨慎甄别
2026-02-16

说点什么...
00





