1/5
丰台新盘卖不动?看完这个细节我悟了
"开盘半年去化不到三成。"刷到这条推送时,我正在京荟广场排队买奶茶。转头望了望在建中的社区大楼,突然明白为什么观宸卖得比它快1.6倍。
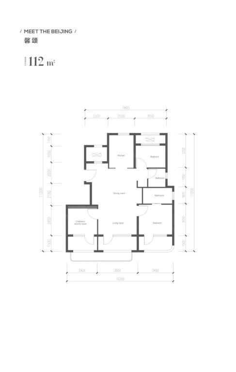
作为常年在金融街搬砖的新生代家庭,我们既要通勤效率更要生活质感。北京隅·西颂112㎡三居的阔绰飘窗确实让人心动,但站在白盆窑地铁站往东走716米时,鞋跟卡进井盖的瞬间让我清醒——这里离成熟生活圈还差着3个红绿灯的距离。
项目容积率控制在2.5确实难得,30%绿化率打造的社区花园也很治愈。但当我打开外卖软件发现常喝的%Arabica要36分钟送达时,突然怀念起新宫站旁15分钟生活圈的热闹。开发商说的科技园规划固然美好,可现阶段晚餐后想逛个商场,还得打车去4公里外的荟聚。
不过必须承认,4.8米面宽的LDK一体化设计确实惊艳,主卧套间能放下我收藏的中古梳妆台。只是每次想到要为这情调多付20分钟通勤时间,握着户型图的手又默默松开。毕竟生活的容器里,不该装满奔波疲惫。
你说值得为户型买单?那得先问问自己能否接受未来三年,每天清晨与14号线早高峰的亲密接触。当社区成熟度跟不上房价刻度,再美的容器也盛不下当下的生活。
作为常年在金融街搬砖的新生代家庭,我们既要通勤效率更要生活质感。北京隅·西颂112㎡三居的阔绰飘窗确实让人心动,但站在白盆窑地铁站往东走716米时,鞋跟卡进井盖的瞬间让我清醒——这里离成熟生活圈还差着3个红绿灯的距离。
项目容积率控制在2.5确实难得,30%绿化率打造的社区花园也很治愈。但当我打开外卖软件发现常喝的%Arabica要36分钟送达时,突然怀念起新宫站旁15分钟生活圈的热闹。开发商说的科技园规划固然美好,可现阶段晚餐后想逛个商场,还得打车去4公里外的荟聚。
不过必须承认,4.8米面宽的LDK一体化设计确实惊艳,主卧套间能放下我收藏的中古梳妆台。只是每次想到要为这情调多付20分钟通勤时间,握着户型图的手又默默松开。毕竟生活的容器里,不该装满奔波疲惫。
你说值得为户型买单?那得先问问自己能否接受未来三年,每天清晨与14号线早高峰的亲密接触。当社区成熟度跟不上房价刻度,再美的容器也盛不下当下的生活。
#新房探盘 #周边配套 #户型解析 #购房陷阱 #房价走势
该内容疑似使用AI技术合成,请谨慎甄别
2026-01-06

说点什么...
50





