1/6
1000万级四环内改善盘真相|角力20年国际社区的三大痛点
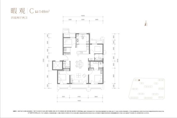
上周陪设计师闺蜜看盘时被震撼到:朝阳北路旁有个楼盘竟把宋式屋檐装进飘窗!开发商在148㎡户型里藏了7处「飘窗咖啡角」,但住进去真的能躺平吗?
在星河湾板块沉淀20年的张姐告诉我,这里聚集着50多个老小区业主的集体焦虑。中建这个新盘虽然用雅宋园林复刻了《营造法式》,但实际得房率比星河湾低5%。南地块的中央水景确实惊艳,可北侧户型要直面黄杉木店路的车流噪音。
真正让我心动的是6号线地铁口500米的便捷度,朝阳大悦城两个红绿灯就能喝到Manner。但2028年底交付的承诺,对急着置换的改善家庭来说,等待成本可能比想象中更煎熬。
真相是:国际住区的稀缺性正在被透支,2.6容积率带来的舒展终究要面对四环内的高密度现实。当精装交付遇上30%绿化率,你会选择诗意的屋檐,还是更真实的居住空间?
在星河湾板块沉淀20年的张姐告诉我,这里聚集着50多个老小区业主的集体焦虑。中建这个新盘虽然用雅宋园林复刻了《营造法式》,但实际得房率比星河湾低5%。南地块的中央水景确实惊艳,可北侧户型要直面黄杉木店路的车流噪音。
真正让我心动的是6号线地铁口500米的便捷度,朝阳大悦城两个红绿灯就能喝到Manner。但2028年底交付的承诺,对急着置换的改善家庭来说,等待成本可能比想象中更煎熬。
真相是:国际住区的稀缺性正在被透支,2.6容积率带来的舒展终究要面对四环内的高密度现实。当精装交付遇上30%绿化率,你会选择诗意的屋檐,还是更真实的居住空间?
#新房探盘 #户型解析 #周边配套 #房屋质量 #购房陷阱
该内容疑似使用AI技术合成,请谨慎甄别
2025-12-05

说点什么...
30





