1/6
300万在南城抢三面宽三居?房山教育盘这次玩真的
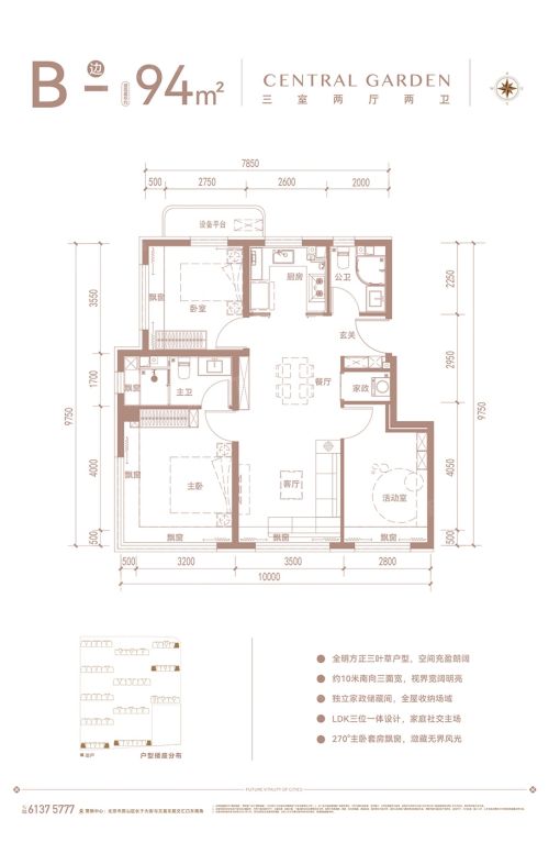
"这个预算只能买海淀老破小?"上周陪粉丝看房,94㎡南向三面宽户型直接让我瞳孔地震。房山良乡这个新盘,正在用三个硬核配置重构南城改善逻辑:
①12年制人大附落地实锤:8.17亿独立投资+土地出让文件锁定,隔壁项目举白旗的确定性配置。2027年开学倒逼板块价值重构,周边京熙润府二手报价已站上4万+。
②300万级户型碾压链:市面同价位还在做"中间户北向采光",璟贤瑞庭94㎡硬核植入南向三面宽+双卫配置。116㎡四居甚至做到11米总面宽,主卧套间尺度看齐千万级改善盘。
③2.0容积率反杀五环内:全系8-15层低密设计,35%绿化率实现"楼间跑风筝"的奢侈体验。对比天宫院同面积段产品,得房率足足高出8个点。
当然要提醒:项目2026年底交付意味着要扛两年租房成本,西侧商业配套还需时间成熟。但对教育刚需家庭来说,家门口12年黄金教育链的诱惑,可能比朝阳学区的百万溢价更真实。你想要的品质生活,或许该重新定义坐标系了。
①12年制人大附落地实锤:8.17亿独立投资+土地出让文件锁定,隔壁项目举白旗的确定性配置。2027年开学倒逼板块价值重构,周边京熙润府二手报价已站上4万+。
②300万级户型碾压链:市面同价位还在做"中间户北向采光",璟贤瑞庭94㎡硬核植入南向三面宽+双卫配置。116㎡四居甚至做到11米总面宽,主卧套间尺度看齐千万级改善盘。
③2.0容积率反杀五环内:全系8-15层低密设计,35%绿化率实现"楼间跑风筝"的奢侈体验。对比天宫院同面积段产品,得房率足足高出8个点。
当然要提醒:项目2026年底交付意味着要扛两年租房成本,西侧商业配套还需时间成熟。但对教育刚需家庭来说,家门口12年黄金教育链的诱惑,可能比朝阳学区的百万溢价更真实。你想要的品质生活,或许该重新定义坐标系了。
#新房探盘 #户型解析 #热门板块
该内容疑似使用AI技术合成,请谨慎甄别
2025-09-30

说点什么...
50





