1/19
房山 首开熙悦汇 2室1厅 49.58㎡ 88万
标题:自家首开熙悦汇东南向两居,88万急售!
正文:
忍痛挂出我家这套超值两居室🏠!首开熙悦汇2017年的次新房,自己住了几年特别爱惜,现在因为工作调动不得不转手😢。
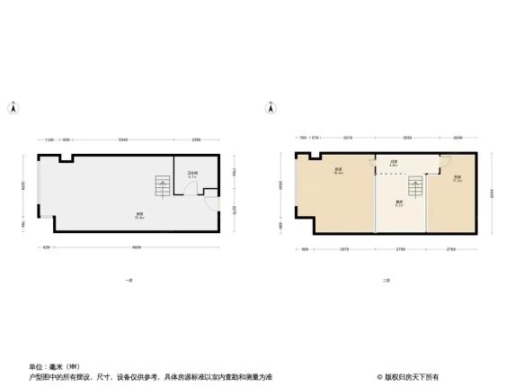
房子在9层(总高11层),东南朝向🌞,每天阳光洒满客厅特别舒服!建面49.58㎡做成两室一厅,空间利用率超高,主卧能放下1.8米大床还带整面衣柜~小区绿化超好,人车分流特别安全,步行5分钟就是地铁站🚇,周边超市、菜场、奶茶店啥都有🥤!
重点❗️同小区同户型基本都挂95万+,我家只要88万!因为想快点成交,家具家电都可以商量留给你~周末就能看房,真心买的咱们好好聊💕
(悄悄说:物业费才2.8元/㎡,比周边小区便宜不少呢!)
正文:
忍痛挂出我家这套超值两居室🏠!首开熙悦汇2017年的次新房,自己住了几年特别爱惜,现在因为工作调动不得不转手😢。
房子在9层(总高11层),东南朝向🌞,每天阳光洒满客厅特别舒服!建面49.58㎡做成两室一厅,空间利用率超高,主卧能放下1.8米大床还带整面衣柜~小区绿化超好,人车分流特别安全,步行5分钟就是地铁站🚇,周边超市、菜场、奶茶店啥都有🥤!
重点❗️同小区同户型基本都挂95万+,我家只要88万!因为想快点成交,家具家电都可以商量留给你~周末就能看房,真心买的咱们好好聊💕
(悄悄说:物业费才2.8元/㎡,比周边小区便宜不少呢!)
#房主直售 #二手房探房 #周边配套 #户型解析
2025-08-09

说点什么...
00





