1/3
顺义六环外,北京合院真能兼顾学区和品质?
上周接待了位海淀家长,孩子明年幼升小想转顺义,开口就问:"都说这里学校好,但通勤真要每天两小时?"我给她讲了张姐的故事。这位外企高管去年卖掉东城学区房,在北京合院买了套222平四居。装修时发现主卧飘窗正对仁和公园湖景,但第一次送孩子上学就傻眼——家门口的仁和中心小学确实步行10分钟,可自己到国贸上班要换乘3次地铁!
这个案例折射出项目的核心价值:仁和公园+潮白河双生态景观确实稀缺,石园小学到顺义一中全龄教育资源更是硬核。但必须提醒,虽然社区自带商超和健身会所,想去SKP还得开车40分钟。就像张姐现在每天6:30出门,却能在回家时看到孩子在新中式园林里写毛笔字的场景——本月25日前,定制香水瓶书法体验确实戳中高知家庭的文化情结。
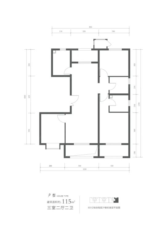
你想要的晨跑林荫道,他们给到了30%绿化率;你在意的全明户型,115平起步全部南北通透;但你纠结的都市节奏,这里只能用仁和公园的鸟鸣来补偿。当孩子在四合院提笔写下第一个"家"字,你会明白,有些选择注定要在诗意的栖居和现实的奔忙间寻找平衡点。
这个案例折射出项目的核心价值:仁和公园+潮白河双生态景观确实稀缺,石园小学到顺义一中全龄教育资源更是硬核。但必须提醒,虽然社区自带商超和健身会所,想去SKP还得开车40分钟。就像张姐现在每天6:30出门,却能在回家时看到孩子在新中式园林里写毛笔字的场景——本月25日前,定制香水瓶书法体验确实戳中高知家庭的文化情结。
你想要的晨跑林荫道,他们给到了30%绿化率;你在意的全明户型,115平起步全部南北通透;但你纠结的都市节奏,这里只能用仁和公园的鸟鸣来补偿。当孩子在四合院提笔写下第一个"家"字,你会明白,有些选择注定要在诗意的栖居和现实的奔忙间寻找平衡点。
#新房探盘 #周边配套 #户型解析
该内容疑似使用AI技术合成,请谨慎甄别
2025-05-21

说点什么...
50





