1/7
涞水 世茂·一渡青青小镇 3室2厅 153.69㎡ 165万
标题:自家153㎡南北通透三居 165万急售💕
正文:
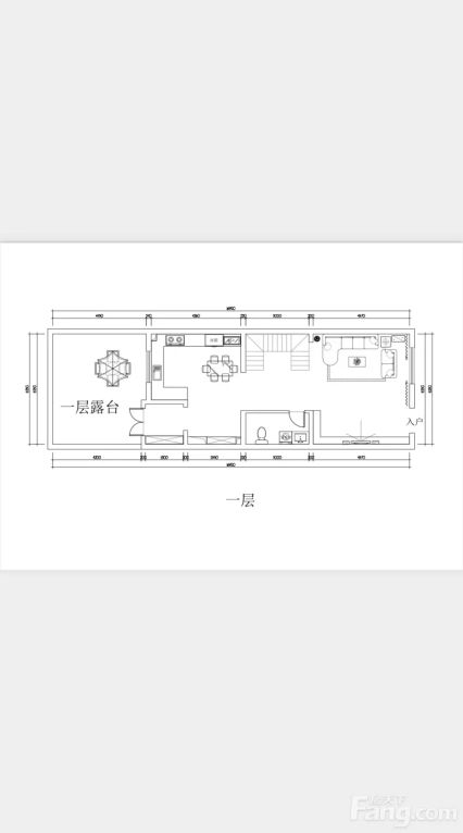
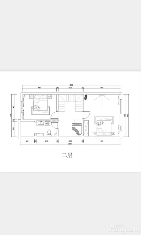
忍痛割爱!这套住了3年的自家小别墅真的要出手了😭 世茂·一渡青青小镇的153㎡三居室,南北通透的板楼设计,阳光能从早晒到晚☀️!
我家在一层(总高3层),出门就是小区花园🌷。2021年精装交付的,自己住特别爱惜,厨房的橱柜连划痕都没有!三个卧室都带超大飘窗,主卧能直接看到远处山景⛰️。小区门口就是公交站,开车10分钟到拒马河景区,周末遛弯超方便~
当初买这里就是图环境好,邻居们都是年轻家庭👨👩👧👦。物业特别负责,疫情期间送菜上门的那种!现在因为工作调动急售,单价算下来才1万出头,同小区同户型都挂180万+了,诚心买的宝子抓紧滴滴我呀💌
(悄悄说:价格可小刀,但别屠龙刀哈😂)
正文:
忍痛割爱!这套住了3年的自家小别墅真的要出手了😭 世茂·一渡青青小镇的153㎡三居室,南北通透的板楼设计,阳光能从早晒到晚☀️!
我家在一层(总高3层),出门就是小区花园🌷。2021年精装交付的,自己住特别爱惜,厨房的橱柜连划痕都没有!三个卧室都带超大飘窗,主卧能直接看到远处山景⛰️。小区门口就是公交站,开车10分钟到拒马河景区,周末遛弯超方便~
当初买这里就是图环境好,邻居们都是年轻家庭👨👩👧👦。物业特别负责,疫情期间送菜上门的那种!现在因为工作调动急售,单价算下来才1万出头,同小区同户型都挂180万+了,诚心买的宝子抓紧滴滴我呀💌
(悄悄说:价格可小刀,但别屠龙刀哈😂)
#房主直售
2025-07-14

说点什么...
00





