1/18
自家南北通透两居室,滑雪度假超便利🏡
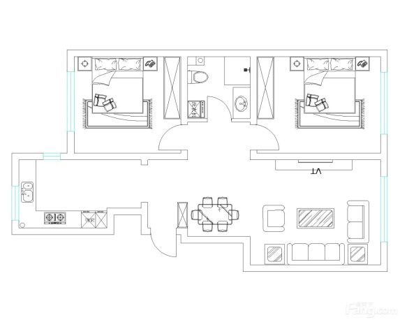
这套房子是我自己住了5年的家,在龙熙顺景小区,91.56㎡的两室两厅,南北朝向特别通透🌬️。楼层是5层(总高11层),每天阳光都能洒满客厅,冬天暖气足到穿短袖❄️→☀️。
位置真心方便!步行4分钟到高铁站🚄,去长白山滑雪超快——坐高铁19分钟直达,开车到万达滑雪场20分钟⛷️,鲁能滑雪场30分钟🚗。夏天避暑超适合,机场也就20分钟车程✈️。
装修都是自己盯的,厨房柜子加厚了,卫生间干湿分离🚿。小区安静又安全,邻居多是常驻家庭。现在36万急售(同户型最低价),钥匙在手随时看房🔑!真心舍不得,但工作调动不得不卖😢 私聊砍价请带诚意~
位置真心方便!步行4分钟到高铁站🚄,去长白山滑雪超快——坐高铁19分钟直达,开车到万达滑雪场20分钟⛷️,鲁能滑雪场30分钟🚗。夏天避暑超适合,机场也就20分钟车程✈️。
装修都是自己盯的,厨房柜子加厚了,卫生间干湿分离🚿。小区安静又安全,邻居多是常驻家庭。现在36万急售(同户型最低价),钥匙在手随时看房🔑!真心舍不得,但工作调动不得不卖😢 私聊砍价请带诚意~
#房主直售 #周边配套 #户型解析
2026-01-16

说点什么...
00





